Prodej pozemku pro bydlení, Blovice - Hradiště, 812 m2

Blovice, Hradiště

3 328 400 Kč /za nemovitost HYPOTÉKA od 14 876 Kč /za měsíc
Prémioví partneři v Blovicích

Stěhovací služby

Pojištění a finance

Informace k pozemku

Prodej pozemku k bydlení, 812 m², Blovice

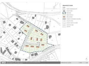
Nabízíme k prodeji stavební pozemek o rozloze 812 m² v klidné části obce Hradiště u Blovic. Tento pozemek je ideální pro výstavbu rodinného domu, přičemž zastavitelnost činí 20%. K pozemku je přivedena elektřina, kanalizace a vodovodní přípojka, což usnadňuje zahájení stavebních prací. Lokalita nabízí klidné prostředí, ideální pro rodinné bydlení, a zároveň se nachází v blízkosti města Blovice, které poskytuje veškerou občanskou vybavenost, včetně škol, obchodů a zdravotnických zařízení. Pozemek je ve velmi dobrém stavu, připraven k okamžitému využití. Neváhejte a využijte tuto jedinečnou příležitost pro výstavbu vašeho vysněného domova. Zdarma pomůžeme s financováním. Doporučuji prohlídku.

Parametry pozemku

Cena
3 328 400 Kč /za nemovitost Spočítat hypotéku
Aktualizováno
11. 3. 2026
Adresa
Blovice, Hradiště
ID
923825
Stav objektu
Velmi dobrý
Vybaveno
Ne
Lokalita objektu
Klidná část obce
Vlastnictví
Osobní
Plocha pozemku
812 m2

Kontaktovat makléře

Realitní kancelář

Logo M&M reality

M&M reality

ulice Krakovská 583/9, Praha

Chystáte se prodat nemovitost?
Pomůžeme Vám!

Máte zájem o tento pozemek?

Tímto, v souladu s nařízením Evropského parlamentu a Rady (EU) 2016/679, v platném znění, prohlašuji, že mi je alespoň 16 let a uděluji tak svůj souhlas se zpracováním zadaných údajů (jméno, telefon, e-mail, ip adresa) společnosti B3 Technology, s.r.o., IČ: 07330600, se sídlem Novostavby 126/23, 435 11 Lom (správce dat), za účelem předání dotazu z tohoto formuláře Vámi vybranému inzerentovi a zpětného kontaktování mé osoby. Osobní údaje bude správce zpracovávat manuálně i automaticky přímo prostřednictvím svých zaměstnanců. Informace předané tímto formulářem budou uloženy v databázi správce maximálně po dobu 10 let. Odvolání souhlasu s uložením a zpracováním poskytnutých dat lze e-mailem na info@videobydleni.cz. V případě podezření na neoprávněné použití Vámi poskytnutých údajů máte právo předat podnět k šetření Úřadu pro ochranu osobních údajů. Více informací
Chystáte se prodat nemovitost?
Pomůžeme Vám!
Theleadway banner

Inzerát si prohlédlo 15 lidí

Prodejce

Lukáš Láznička

Lukáš Láznička

Hlídací pes

Chcete dostávat emailem podobné nabídky prodeje pozemků pro bydlení v Blovicích?

Podobné nemovitosti


Nevyhovuje Vám typ pozemku? Podívejte se na jiné kategorie pozemků.


Vybrané články z našeho blogu