Prodej bytu 1+kk, Český Krumlov, Urbinská, 33 m2

Urbinská, Český Krumlov

2 750 000 Kč /za nemovitost HYPOTÉKA od 12 291 Kč /za měsíc

(+ 1 % provize (+DPH))

Prémioví partneři v Českém Krumlově

Výkup a prodej starého nábytku

Informace k bytu

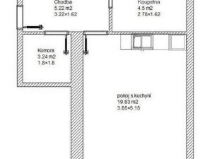
Na prodej útulná zděná garsoniéra s komorou o výměře 33 m, nacházející se ve 2. patře ze 4 v udržovaném domě s výtahem v oblíbené lokalitě Urbinská Český Krumlov.
Byt je světlý, prakticky řešený a připravený k okamžitému bydlení nebo investici na pronájem.
Dispozice: obývací pokoj s novou kuchyní, koupelna se vanou + WC a samostatná komora poskytující dostatek úložného prostoru. Lodžie.
Vytápění ústřední, nízké provozní náklady.
Klidné prostředí, výborná dopravní dostupnost a veškerá občanská vybavenost v dosahu obchod, zastávka, škola i parkování u domu.
Skvělá volba pro jednotlivce, mladý pár nebo investora.

Parametry bytu

Cena
2 750 000 Kč /za nemovitost Spočítat hypotéku
Poznámka k ceně
+ 1 % provize (+DPH)
Aktualizováno
1. 12. 2025
Adresa
Urbinská, Český Krumlov
ID
RS315762
Stavba
Cihlová
Stav objektu
Dobrý
Patro
2. z 4
Typ objektu
Patrový
Vlastnictví
Osobní
Užitná plocha
33 m2
Podlahová plocha
33 m2
Třída energetické náročnosti
G - Mimořádně nehospodárná
Topení
Ústřední dálkové
Lodžie
Bezbarierový přístup

Kontaktovat makléře

Máte zájem o tento byt?

Tímto, v souladu s nařízením Evropského parlamentu a Rady (EU) 2016/679, v platném znění, prohlašuji, že mi je alespoň 16 let a uděluji tak svůj souhlas se zpracováním zadaných údajů (jméno, telefon, e-mail, ip adresa) společnosti B3 Technology, s.r.o., IČ: 07330600, se sídlem Novostavby 126/23, 435 11 Lom (správce dat), za účelem předání dotazu z tohoto formuláře Vámi vybranému inzerentovi a zpětného kontaktování mé osoby. Osobní údaje bude správce zpracovávat manuálně i automaticky přímo prostřednictvím svých zaměstnanců. Informace předané tímto formulářem budou uloženy v databázi správce maximálně po dobu 10 let. Odvolání souhlasu s uložením a zpracováním poskytnutých dat lze e-mailem na info@videobydleni.cz. V případě podezření na neoprávněné použití Vámi poskytnutých údajů máte právo předat podnět k šetření Úřadu pro ochranu osobních údajů. Více informací
Chystáte se prodat nemovitost?
Pomůžeme Vám!

Inzerát si prohlédlo 65 lidí

Prodejce

Tereza Tomášková

Tereza Tomášková

Hlídací pes

Chcete dostávat emailem podobné nabídky prodeje bytů 1+kk v Českém Krumlově?

Top nabídky

Podobné nemovitosti


Nevyhovuje Vám typ bytu? Podívejte se na jiné kategorie bytů.


Vybrané články z našeho blogu