Prodej bytu 3+kk, Praha - Dolní Měcholupy, Honzíkova, 73 m2

Honzíkova, Praha, Dolní Měcholupy

13 490 000 Kč /za nemovitost HYPOTÉKA od 60 292 Kč /za měsíc

(cena včetně parkovacího stání a komory, cena za převod členského podílu)

Prémioví partneři v Praze 10

Stěhovací služby

Výkup a prodej starého nábytku

Informace k bytu

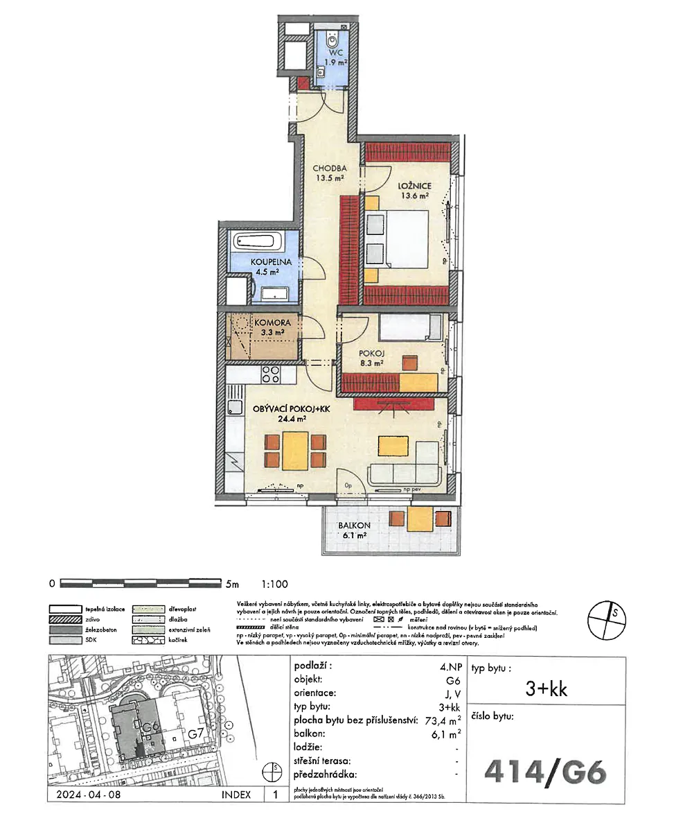
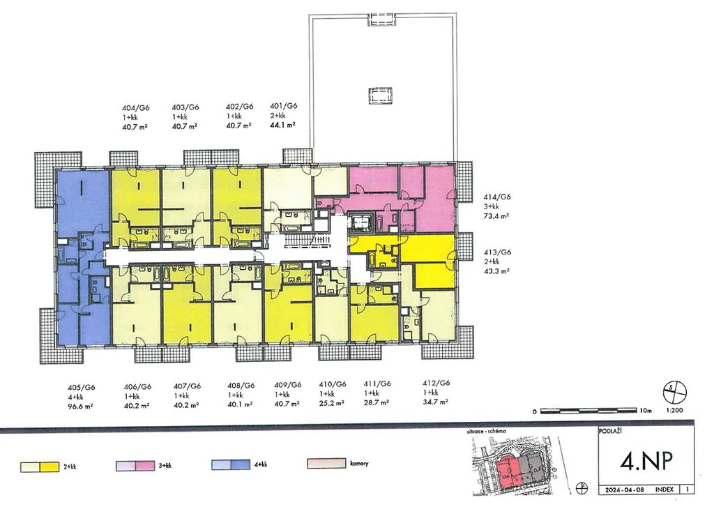
Ve výhradním zastoupení vlastníka nabízíme prodej družstevního bytu 3+kk o ploše 73,4 m² s balkonem o ploše 6,1m, garáží a komorou o ploše 2,9 m² ve 4. NP budovy „G6“ v aktuálně probíhající výstavbě projektu MALÝ HÁJ XV přiléhajícímu k Honzíkově ulici v Praze 10 – Dolních Měcholupech.

Dokončení výstavby je plánované nejpozději na březen roku 2028, (aktuálně předpokládaný termín je říjen 2027).V současné době je ještě možnost klientských změn, do 18.1. 2026 možnost dispozičních změn uvnitř jednotky, do 10.2. 2026 hrubé rozvody technologií včetně zazdívaných prvků zařizovacích předmětů, ukončení rozvodů (vývody vody,kanalizace, ÚT a VZT) včetně určení přesné polohy, roztečí a průměrů.

Předmětem prodeje je družstevní podíl v bytovém družstvu MALÝ HÁJ XV. založeném m.j. společností FINEP, která má s družstevní výstavbou dlouholeté zkušenosti a realizovala již dlouhou řadu úspěšných družstevních projektů. Po dobu výstavby není možný převod do "osobního vlastnictví"

Celková cena včetně komory a garáže je 13 490 000Kč, cena za převod družstevního podílu je 5 051 508Kč. Anuita je 8 438 492Kč, splátky jsou rozložené do třiceti let, předpokládaná měsíční splátka po kolaudaci

- byt 44 633Kč + FO 807Kč
- garáž 2 266Kč + FO 100Kč
- komora 573 Kč + FO 32Kč

Oproti hypotečnímu úvěru v tomto případě kupující nemusí dokládat příjmy a absolvovat složitý proces schvalování hypotečního úvěru.


V okolí se nachází několik obchodních center (OC Štěrboholy, Retail park – se širokou nabídkou obchodů a služeb, 5 min autem od Fashion Arena Prague Outlet), velké dětské hřiště, dopravní hřiště, nový sportovní areál. Autobusová zastávka Kardausova se nachází 10 minut od domu, ze které se dostanete během 6-ti minut na metro A – Depo Hostivař.

Parametry bytu

Cena
13 490 000 Kč /za nemovitost Spočítat hypotéku
Poznámka k ceně
cena včetně parkovacího stání a komory, cena za převod členského podílu
Aktualizováno
27. 2. 2026
Adresa
Honzíkova, Praha, Dolní Měcholupy
Stavba
Cihlová
Stav objektu
Ve výstavbě
Patro
4.
Vybaveno
Ne
Lokalita objektu
Klidná část obce
Vlastnictví
Družstevní
Užitná plocha
73 m2
Třída energetické náročnosti
B - Velmi úsporná
Odpad
Veřejná kanalizace
Komunikace
Asfaltová
Doprava
Silnice, MHD, Autobus
Voda
Vodovod
Topné těleso
Radiátory
Zdroj topení
Centrální dálkové
Zdroj teplé vody
Centrální dálkový ohřev
Balkon
Garáž
Sklep
Výtah
Převod do OV

Kontaktovat makléře

Realitní kancelář

Němec reality

Františka Křížka 1164/32, Praha

Chystáte se prodat nemovitost?
Pomůžeme Vám!

Máte zájem o tento byt?

Tímto, v souladu s nařízením Evropského parlamentu a Rady (EU) 2016/679, v platném znění, prohlašuji, že mi je alespoň 16 let a uděluji tak svůj souhlas se zpracováním zadaných údajů (jméno, telefon, e-mail, ip adresa) společnosti B3 Technology, s.r.o., IČ: 07330600, se sídlem Novostavby 126/23, 435 11 Lom (správce dat), za účelem předání dotazu z tohoto formuláře Vámi vybranému inzerentovi a zpětného kontaktování mé osoby. Osobní údaje bude správce zpracovávat manuálně i automaticky přímo prostřednictvím svých zaměstnanců. Informace předané tímto formulářem budou uloženy v databázi správce maximálně po dobu 10 let. Odvolání souhlasu s uložením a zpracováním poskytnutých dat lze e-mailem na info@videobydleni.cz. V případě podezření na neoprávněné použití Vámi poskytnutých údajů máte právo předat podnět k šetření Úřadu pro ochranu osobních údajů. Více informací
Chystáte se prodat nemovitost?
Pomůžeme Vám!

Inzerát si prohlédlo 10 lidí

Prodejce

Robin Němec

Robin Němec

Hlídací pes

Chcete dostávat emailem podobné nabídky prodeje bytů 3+kk v Praze 10?

Podobné nemovitosti


Nevyhovuje Vám typ bytu? Podívejte se na jiné kategorie bytů.


Vybrané články z našeho blogu