Pronájem atypického bytu, Praha - Břevnov, Patočkova, 14 m2

Patočkova, Praha, Břevnov

10 000 Kč /za měsíc Získejte výhodnou HYPOTÉKU
Prémioví partneři v Praze 6

Stěhovací služby

Výkup a prodej starého nábytku

Informace k bytu

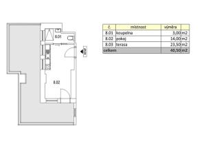
Nabízíme k pronájmu jednotku v lokalitě Praha 6 – Břevnov, která je umístěna v posledním patře 6 podlažní budovy s nádherným výhledem. Jednotka je navržena tak, aby zde bylo možné využít efektivně jejich malých rozměrů. Je ideální pro jednoho člověka a k dispozici je pak veliká plocha terasy, což je hlavní přidanou hodnotou. Jednotka je velmi tichá a světlá.
Jednotka je vybavena novou kuchyňskou linkou s indukční varnou deskou. Koupelna se sprchovým koutem je společná s WC. V celém prostoru je dlažba a k vytápění slouží přímotopný radiátor. Dále je zde internet a TV od UPC za zvýhodněnou cenu, která je zahrnuta ve službách. V okolí bytu je dostupná veškerá občanská i dopravní vybavenost. Stanice tramvají a autobusů směr metro “A“ Hradčanská nebo Malostranská je 5 -7 min chůze. V blízkosti se nachází park Ladronka a obora Hvězda.
Cena měsíčního nájmu je 10.000,- Kč. Poplatky za služby jsou cca 1.100,-Kč (internet, studená voda, odpad, výtah, úklid a osvětlení společných prostor), náklady na spotřebu el. energie odhadujeme na cca 1.500,- Kč (vytápění, ohřev teplé vody, vaření a osvětlení). Na nájemce bude převedena smlouva na dodávku el. energie. Tento prostor je také možno pronajmout jako kancelář. Podmínkou uzavření smlouvy je složení vratné kauce ve výši dvou měsíčních nájmů.
Máme zájem o slušné a spolehlivé nájemníky. Preferujeme dlouhodobý pronájem a nekuřáky bez domácích mazlíčků. V případě zájmu nám prosím zašlete kontakt na vás.

Jsme společnost zabývající se dlouhodobým pronájmem bytových jednotek, kdy vždy vlastníme celý dům a nájemní smlouvy uzavíráme s minimální platností jednoho roku, kdy při oboustranné spokojenosti smlouvy prodlužujeme. Dále neplatíte žádnou provizi za zprostředkování.

Parametry bytu

Cena
10 000 Kč /za měsíc
Aktualizováno
26. 11. 2025
Adresa
Patočkova, Praha, Břevnov
ID
1417206
Stavba
Cihlová
Stav objektu
Velmi dobrý
Patro
6.
Vlastnictví
Osobní
Užitná plocha
14 m2
Terasa

Kontaktovat makléře

Máte zájem o tento byt?

Tímto, v souladu s nařízením Evropského parlamentu a Rady (EU) 2016/679, v platném znění, prohlašuji, že mi je alespoň 16 let a uděluji tak svůj souhlas se zpracováním zadaných údajů (jméno, telefon, e-mail, ip adresa) společnosti B3 Technology, s.r.o., IČ: 07330600, se sídlem Novostavby 126/23, 435 11 Lom (správce dat), za účelem předání dotazu z tohoto formuláře Vámi vybranému inzerentovi a zpětného kontaktování mé osoby. Osobní údaje bude správce zpracovávat manuálně i automaticky přímo prostřednictvím svých zaměstnanců. Informace předané tímto formulářem budou uloženy v databázi správce maximálně po dobu 10 let. Odvolání souhlasu s uložením a zpracováním poskytnutých dat lze e-mailem na info@videobydleni.cz. V případě podezření na neoprávněné použití Vámi poskytnutých údajů máte právo předat podnět k šetření Úřadu pro ochranu osobních údajů. Více informací
Chystáte se prodat nemovitost?
Pomůžeme Vám!

Inzerát si prohlédlo 3 lidí

Prodejce

Martin Kacvinský

Martin Kacvinský

Hlídací pes

Chcete dostávat emailem podobné nabídky pronájmu atypických bytů v Praze 6?

Podobné nemovitosti


Nevyhovuje Vám typ bytu? Podívejte se na jiné kategorie bytů.


Vybrané články z našeho blogu