Remax Monarcha

Prodej bytu 3+kk, Olomouc - Povel, Loudova, 80 m2 (ID: 4127909)

Loudova, Povel

8 840 000 Kč /za nemovitost HYPOTÉKA od 39 509 Kč /za měsíc
Prémioví partneři v Olomouci

Informace k bytu

Nová etapa projektu SLAVONÍNSKÉ ZAHRADY navazuje na již realizované budovy v okolí ulice Loudova a nabízí kvalitní domov pro rodiny s dětmi, mladé páry, seniory i studenty.
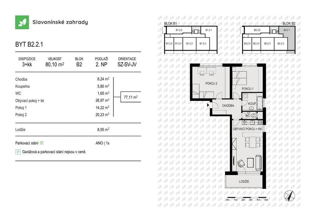
Budova B tvořená dvěma samostatnými sekcemi o čtyřech podlažích zahrnuje celkem 48 moderních bytů v dispozicích od 1kk do 3kk. Každý byt disponuje balkonem či terasou a jednotky v 1. NP mají navíc prostorné předzahrádky, ideální pro relax i rodinný život. Součástí projektu je podzemní parkovací podlaží, které propojuje obě sekce domu, a je tak zajištěno komfortní parkování pro obyvatele. K dokoupení jsou také komory jak v podzemním podlaží, tak na jednotlivých patrech. Pro více informací navštivte webové stránky Slavoninske-zahrady.

Nabízíme prostorný byt s označením B2.2.1 o dispozici 3+kk, podlahové ploše 80,1 m2 v 2. NP, s balkónem 9,5 m2. ideální pro rodiny s dětmi, páry nebo jako investiční bydlení.

Byt je navržen s důrazem na funkčnost, estetiku a soukromí. Velká okna zajišťují dostatek denního světla, přízemní umístění nabízí snadný přístup na terasu a do zahrady, která rozšiřuje obytný prostor a vytváří ideální místo pro relaxaci i volnočasové aktivity.

Součástí standardu je podlahové vytápění v celém bytě, vinylové podlahy, keramické obklady, obložkové zárubně a možnost výběru z několika designových a materiálových variant. Připraveno je i technické zázemí pro instalaci venkovních žaluzií a sdílené fotovoltaiky. K bytu lze dokoupit garážové/venkovní stání i sklep.

Lokalita Slavonína spojuje výhody města a přírody v okolí najdete cyklostezky, rybník, zeleň i kompletní občanskou vybavenost. MHD, školy, školky, zdravotní péče i obchody jsou v docházkové vzdálenosti, stejně jako napojení na hlavní dopravní tahy.

Pokud hledáte moderní bydlení s vysokým standardem, soukromím a vlastním kouskem zeleně, je tento byt skvělou volbou. Dokončení projektu je plánováno na podzim 2027. Prodej je již zahájen kontaktujte nás pro více informací.

Parametry bytu

Cena
8 840 000 Kč /za nemovitost Spočítat hypotéku
Aktualizováno
20. 4. 2026
Adresa
Loudova, Povel
ID
K1510
Stavba
Smíšená
Stav objektu
Novostavba
Patro
2. z 4
Typ objektu
Patrový
Vlastnictví
Osobní
Užitná plocha
80 m2
Podlahová plocha
80 m2
Třída energetické náročnosti
B - Velmi úsporná
Bezbarierový přístup

Kontaktovat makléře

Máte zájem o tento byt?

Tímto, v souladu s nařízením Evropského parlamentu a Rady (EU) 2016/679, v platném znění, prohlašuji, že mi je alespoň 16 let a uděluji tak svůj souhlas se zpracováním zadaných údajů (jméno, telefon, e-mail, ip adresa) společnosti B3 Technology, s.r.o., IČ: 07330600, se sídlem Novostavby 126/23, 435 11 Lom (správce dat), za účelem předání dotazu z tohoto formuláře Vámi vybranému inzerentovi a zpětného kontaktování mé osoby. Osobní údaje bude správce zpracovávat manuálně i automaticky přímo prostřednictvím svých zaměstnanců. Informace předané tímto formulářem budou uloženy v databázi správce maximálně po dobu 10 let. Odvolání souhlasu s uložením a zpracováním poskytnutých dat lze e-mailem na info@videobydleni.cz. V případě podezření na neoprávněné použití Vámi poskytnutých údajů máte právo předat podnět k šetření Úřadu pro ochranu osobních údajů. Více informací
Chystáte se prodat nemovitost?
Pomůžeme Vám!

Inzerát si prohlédlo 36 lidí

Prodejce

Mgr. Gabriela Mencnerová

Mgr. Gabriela Mencnerová

Hlídací pes

Chcete dostávat emailem podobné nabídky prodeje bytů 3+kk v Olomouci?

Podobné nemovitosti


Nevyhovuje Vám typ bytu? Podívejte se na jiné kategorie bytů.


Vybrané články z našeho blogu