Pronájem bytu 3+kk, Benešov, 102. pluku, 73 m2 (ID: 4129488)

102. pluku, Benešov

25 000 Kč /za měsíc Získejte výhodnou HYPOTÉKU

(+ poplatky a odměna pro RK)

Prémioví partneři v Benešově

Informace k bytu

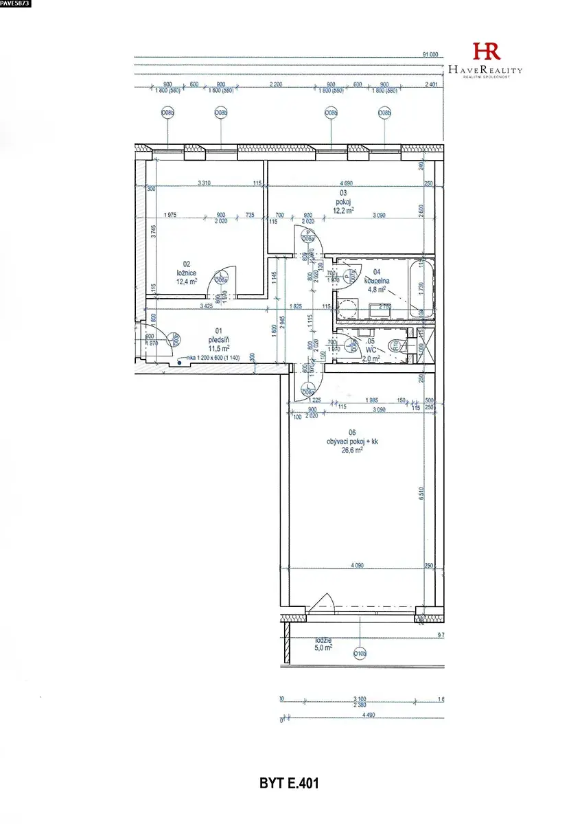
Dovolujeme si Vám nabídnout do pronájmu s platností od 02/2026 krásný byt 3+kk, o velikosti 73,1m2 + lodžie 5,1 m2 v novostavbě dokončovaného bytového komplexu 102. pluku v Benešově. Výstavba nového bytového domu probíhala v letech 2025-2026 a splňuje nejvyšší nároky a standardy bydlení. Byt je dispozičně členěn na: vstupní předsíň 12,1m2, ložnici 12,4m2, pokoj 13 m2, samostatné WC 1,7m2, koupelnu s vanou 4,7 m2 a obývací pokoj s kuchyňským koutem 29,2 m2 se vstupem na lodžii 5,1 m2. Dům je zateplený, nízkonákladový, splňuje PENB třídy „B“ a má výtah. V bytě je naistalována nová kuchyňská linka zn. SYKORA se spotřebiči (pečící trouba, varná sklokeramická deska, lednice s mrazákem a digestoř s odtahem) + příprava na myčku nádobí. Vytápění v domě a ohřev teplé vody zajistí centrální plynový kotel. V bytě jsou rozmístěny radiátory a v koupelně topný žebřík. Každá jednotka má svůj vlastní elektroměr, měřiče spotřeby studené i teplé vody a spotřeby tepla. Na podlaze je plovoucí podlaha v dezénu dub/buk a keramická dlažba. Okna jsou plastová, zvenčí šedá, uvnitř bílá, s izolačními skly. Vstupní dveře každého bytu jsou protipožární, k dispozici je domácí telefon s vnější kamerou, mikrofonem a reproduktorem. V suterénu domu se nachází parkovací stání pro vůz (za poplatek 1.500,- Kč), sklepní kóje a společné prostory v domě. Požadované měsíční nájemné za byt činí 25.000,- Kč + záloha na spotřebu médií cca 4.000,- Kč včetně spotřeby el. energie. Parkování v suterénu domu za poplatek 1.500,- Kč měsíčně za 1 parkovací místo. Jistota (dříve kauce) činí 45.000,- Kč a je vratná po řádném ukončení nájemního vztahu. Provize pro RK činí 1měsíční nájemné. Nabídka je určena pro zájemce bez domácích mazlíčků. Upřednostňujeme dlouhodobý pronájem. V Benešově je veškerá občanská vybavenost v místě a dobré dopravní spojení do Prahy a Českých Budějovic. Prohlídky objektu jsou možné po dohodě. V případě Vašich dotazů nás neváhejte kontaktovat na uvedeném telefonním čísle.

Parametry bytu

Cena
25 000 Kč /za měsíc
Poznámka k ceně
+ poplatky a odměna pro RK
Aktualizováno
24. 1. 2026
Adresa
102. pluku, Benešov
ID
PAVE5873
Stavba
Smíšená
Stav objektu
Novostavba
Patro
4. z 6
Lokalita objektu
Centrum obce
Vlastnictví
Osobní
Užitná plocha
73 m2
Podlahová plocha
73 m2
Třída energetické náročnosti
B - Velmi úsporná
Balkon
Lodžie
Bezbarierový přístup
Převod do OV
Parkování

Kontaktovat makléře

Máte zájem o tento byt?

Tímto, v souladu s nařízením Evropského parlamentu a Rady (EU) 2016/679, v platném znění, prohlašuji, že mi je alespoň 16 let a uděluji tak svůj souhlas se zpracováním zadaných údajů (jméno, telefon, e-mail, ip adresa) společnosti B3 Technology, s.r.o., IČ: 07330600, se sídlem Novostavby 126/23, 435 11 Lom (správce dat), za účelem předání dotazu z tohoto formuláře Vámi vybranému inzerentovi a zpětného kontaktování mé osoby. Osobní údaje bude správce zpracovávat manuálně i automaticky přímo prostřednictvím svých zaměstnanců. Informace předané tímto formulářem budou uloženy v databázi správce maximálně po dobu 10 let. Odvolání souhlasu s uložením a zpracováním poskytnutých dat lze e-mailem na info@videobydleni.cz. V případě podezření na neoprávněné použití Vámi poskytnutých údajů máte právo předat podnět k šetření Úřadu pro ochranu osobních údajů. Více informací
Chystáte se prodat nemovitost?
Pomůžeme Vám!

Inzerát si prohlédlo 70 lidí

Prodejce

Andrea Venerová

Andrea Venerová

Hlídací pes

Chcete dostávat emailem podobné nabídky pronájmu bytů 3+kk v Benešově?

Podobné nemovitosti


Nevyhovuje Vám typ bytu? Podívejte se na jiné kategorie bytů.


Vybrané články z našeho blogu