Prodej chalupy, Liberec - Liberec XIV-Ruprechtice, Dračí, 153 m2

Dračí, Liberec XIV-Ruprechtice - Liberec (nečleněné město)

9 500 000 Kč /za nemovitost HYPOTÉKA od 42 459 Kč /za měsíc
Prémioví partneři v Liberci

Rekonstrukce

Úklidové služby

Informace k domu

Na prodej Vám nabízíme krásný dům, umístěný na západním svahu nad údolím Černé Nisy. Nemovitost se nachází v unikátní lokalitě, která jedinečným způsobem spojuje výhodu bydlení nedaleko centra města Liberce s oázou klidu na polosamotě v srdci přírody.

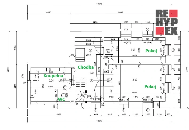
Dispozice domu je 4+kk. V přízemí se nachází komora (spíž), samostatné WC, prostorná kuchyně, předsíň a sklep s klenutým stropem z kamene. V prvním patře naleznete útulný obývací pokoj a pracovnu (obě místnosti s přípravou na kamna), dále pak prostornou koupelnu s luxusní rohovou vanou, bojlerem, závěsným WC Geberit, přípravou pro pračku a myčku. Třešničkou na dortu je rozsáhlý podkrovní prostor, který lze buď ponechat v současné podobě nebo jednoduše přepažit na několik menších pokojů dle přání majitele.

Dům prošel rekonstrukcí s důrazem na zachování původní podoby ve stylu venkovského stavení, ale při použití nejmodernějších postupů a materiálů. Střecha, pokrytá novou krytinou, získala novou izolaci a zateplení PUR pěnou, která v létě brání zahřívání interiéru a v zimě tepelně izoluje. Okenní výplně mají izolační trojskla s tepelným koeficientem 0,6m. Zateplení fasády tvoří polystyren o tloušťce 10 cm, došlo k výměně okapů a svodů i hromosvodu. Nově byly instalovány rozvody vody, elektřiny a topný systém včetně radiátorů a kotle. Kuchyně je připravena na instalaci kuchyňské linky. Samozřejmostí je pečlivě provedená izolace proti radonu, a to po celé zastavěné ploše domu.

Na dům navazuje prostorná členitá zahrada o velikosti 1500 m2 se studánkou, skalním masivem, prostorem pro letní posezení, pergolu nebo venkovní krb. Zahrada umožňuje přímý přístup do lesa. Přístup k nemovitosti poskytuje obecní komunikace přes most z ulice Kateřinská. Parkovat lze ve spodní části pozemku u příjezdové komunikace i přímo u domu. Zastávka MHD se nachází na nedaleké Kateřinské ulici, po které zároveň vede cyklistická stezka č. 3036 a křižuje ji modře značená turistická trasa. Veškerá občanská vybavenost v místě.

Parametry domu

Cena
9 500 000 Kč /za nemovitost Spočítat hypotéku
Aktualizováno
18. 12. 2025
Adresa
Dračí, Liberec XIV-Ruprechtice - Liberec (nečleněné město)
ID
N2036
Stavba
Cihlová
Stav objektu
Po rekonstrukci
Typ objektu
Patrový
Druh objektu
Samostatný
Užitná plocha
153 m2
Zastavěná plocha
82 m2
Podlahová plocha
153 m2
Plocha pozemku
1500 m2
Třída energetické náročnosti
G - Mimořádně nehospodárná
Elektřina
400V
Odpad
ČOV pro celý objekt
Topení
Ústřední elektrické
Doprava
Dálnice, Silnice, MHD, Autobus
Voda
Místní zdroj vody
Sklep
Parkování

Kontaktovat makléře

Realitní kancelář

Logo REHYPEX, s.r.o.

REHYPEX, s.r.o.

Veleslavínova 208/9, Liberec III-Jeřáb

Chystáte se prodat nemovitost?
Pomůžeme Vám!

Máte zájem o tento dům?

Tímto, v souladu s nařízením Evropského parlamentu a Rady (EU) 2016/679, v platném znění, prohlašuji, že mi je alespoň 16 let a uděluji tak svůj souhlas se zpracováním zadaných údajů (jméno, telefon, e-mail, ip adresa) společnosti B3 Technology, s.r.o., IČ: 07330600, se sídlem Novostavby 126/23, 435 11 Lom (správce dat), za účelem předání dotazu z tohoto formuláře Vámi vybranému inzerentovi a zpětného kontaktování mé osoby. Osobní údaje bude správce zpracovávat manuálně i automaticky přímo prostřednictvím svých zaměstnanců. Informace předané tímto formulářem budou uloženy v databázi správce maximálně po dobu 10 let. Odvolání souhlasu s uložením a zpracováním poskytnutých dat lze e-mailem na info@videobydleni.cz. V případě podezření na neoprávněné použití Vámi poskytnutých údajů máte právo předat podnět k šetření Úřadu pro ochranu osobních údajů. Více informací
Chystáte se prodat nemovitost?
Pomůžeme Vám!

Inzerát si prohlédlo 0 lidí

Prodejce

Ing. Petr Plaček

Ing. Petr Plaček

Hlídací pes

Chcete dostávat emailem podobné nabídky prodeje chalup v Liberci?

Podobné nemovitosti


Nevyhovuje Vám typ domu? Podívejte se na jiné kategorie domů.


Vybrané články z našeho blogu