Prodej bytu 2+kk, Pec pod Sněžkou, 42 m2 (ID: 4140412)

Pec pod Sněžkou, Velká Úpa I

9 401 000 Kč /za nemovitost HYPOTÉKA od 42 017 Kč /za měsíc
Prémioví partneři v Peci pod Sněžkou

Informace k bytu

Prodej bytu 1,5+kk s předzahrádkou – Rezidence Zvonička, část obce Velká Úpa I., obec Pec pod Sněžkou

Nabízíme k prodeji byt v novém developerském projektu Rezidence Zvonička, který vzniká na slunném svahu Vavřincova Dolu, v lokalitě s velmi omezenými možnostmi další výstavby. Projekt je zasazen do krkonošské krajiny s důrazem na respekt k okolní přírodě a zachování horského charakteru místa.

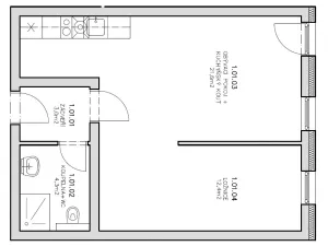
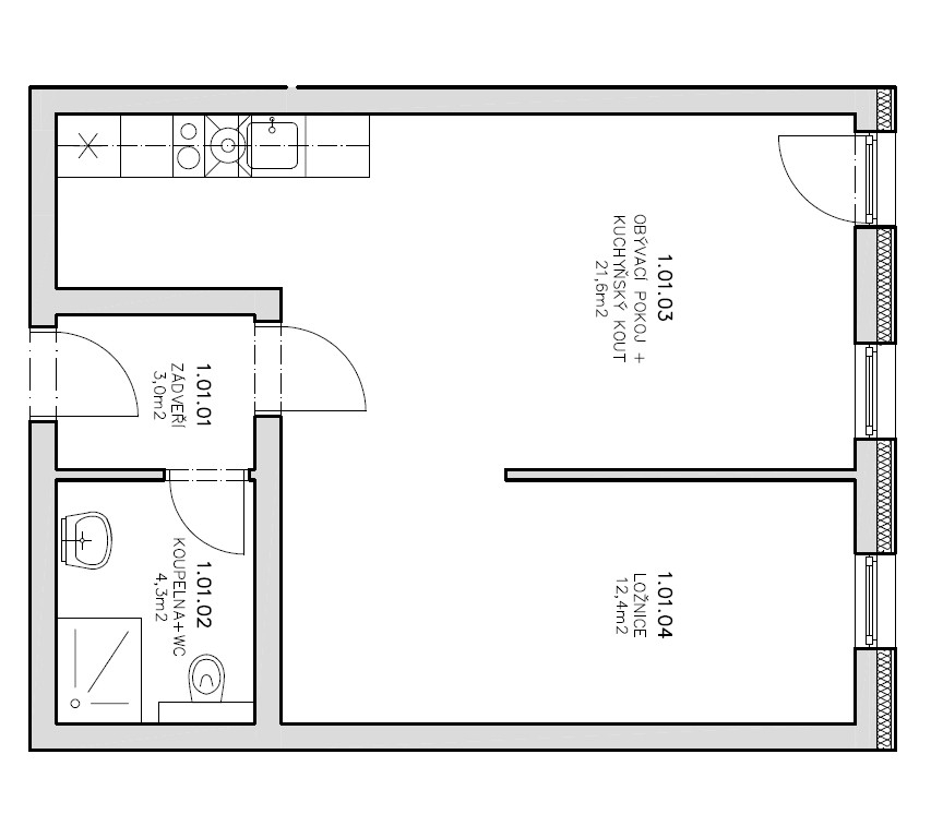
Předmětem prodeje je byt o dispozici 1,5+kk s užitnou plochou 42 m², předzahrádkou o výměře 70 m² a parkovacím stáním.

Dispoziční řešení bytu:
- obývací pokoj s kuchyňským koutem
- ložnice oddělená sádrokartonovou příčkou bez dveří
- koupelna s WC

Byt je kompletně vybaven nábytkem na míru, který maximálně využívá prostor a podtrhuje moderní horský styl interiéru. Součástí je kvalitní kuchyňská linka včetně spotřebičů značky Siemens.

Součástí bytu je předzahrádka o výměře 70 m² v osobním vlastnictví, která je zahrnuta v ceně a poskytuje příjemný venkovní prostor s výhledem do okolní krkonošské krajiny.

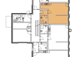
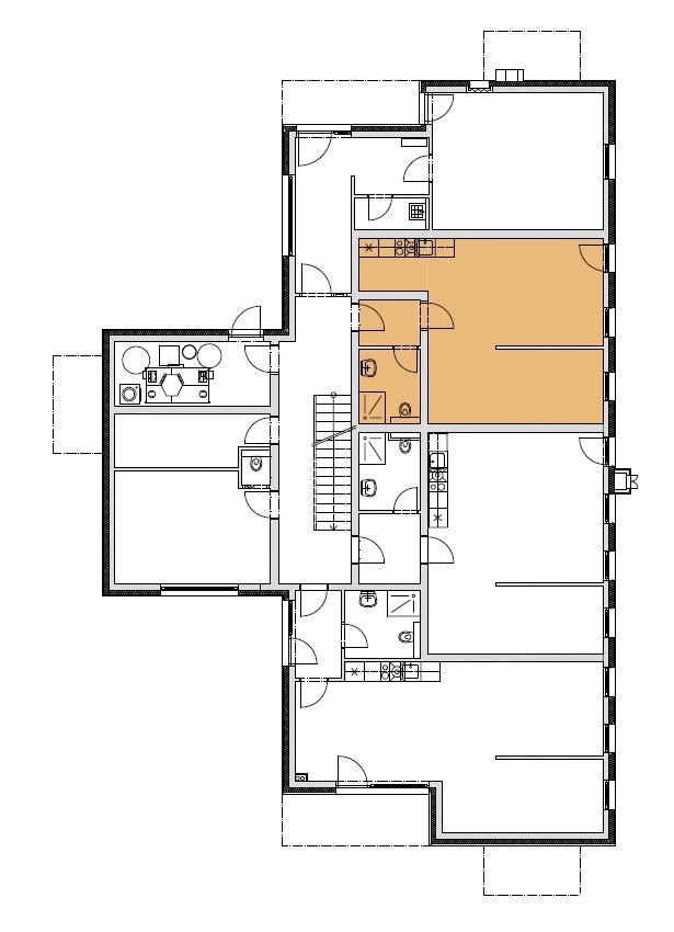
Byt je součástí rezidence s celkovým počtem 10 bytových jednotek o dispozicích 1+kk, 2+kk a mezonetů. Rezidence nabízí společné zázemí v podobě lyžárny/kolárny a sauny. Ke každému bytu náleží parkovací stání před domem.

Rezort se vyznačuje prémiovým technickým standardem:
- podlahové topení napojené na tepelné čerpadlo země–voda (4 vrty)
- integrovaná klimatizace s ovládáním přes mobilní aplikaci (možnost vytopení bytu před příjezdem)
- rekuperace vzduchu
- okna s trojskly
- FVE na střeše rezidence pro snížení nákladů za elektřinu
- internetové připojení Starlink

Projekt se vyznačuje nadčasovou architekturou s použitím přírodních materiálů – dřeva a kamene, které podtrhují horský charakter stavby. Všechny byty v rezidenci disponují otevřenými výhledy do krkonošské krajiny.

Lokalita a volnočasové aktivity:
- zastávka ski busu 50 m od rezidence
- vlek (poma) pro začátečníky hned vedle domu
- výborná dostupnost lyžařských areálů: SkiResort Velká Úpa, SkiResort Pec pod Sněžkou, SkiResort Černá hora
- celoroční využití – turistika, cyklistika
- oblíbené procházky k oboře nebo k vodopádům v bezprostředním okolí
- budoucí napojení dálnice D11 až k Trutnovu

Byt je vhodný jak pro vlastní rekreaci či bydlení, tak jako investiční nemovitost s vysokým potenciálem krátkodobého pronájmu v jedné z nejžádanějších horských lokalit Krkonoš. Celkem prodáváme 6 různých bytů vč. mezonetů. Detail naleznete na webových stránkách.

Předpokládaná kolaudace 4/2026.

S financováním Vám rád pomůže můj kolega Petr Koza, na kterého se můžete spolehnout.

Pro více informací nebo sjednání prohlídky nás neváhejte kontaktovat.

Parametry bytu

Cena
9 401 000 Kč /za nemovitost Spočítat hypotéku
Aktualizováno
27. 1. 2026
Adresa
Pec pod Sněžkou, Velká Úpa I
ID
5007250001
Stavba
Cihlová
Stav objektu
Novostavba
Patro
1. z 2
Vybaveno
Ano
Lokalita objektu
Klidná část obce
Vlastnictví
Osobní
Užitná plocha
42 m2
Plocha zahrady
70 m2
Třída energetické náročnosti
A - Mimořádně úsporná
Elektřina
230V
Odpad
ČOV pro celý objekt
Komunikace
Asfaltová
Telekomunikace
Internet, Kabelové rozvody
Doprava
Silnice, Autobus
Voda
Vodovod
Bezbarierový přístup
Parkování
Nízkoenergetický

Kontaktovat makléře

Realitní kancelář

Logo eDO reality

eDO reality

Na Pankráci 322/26, Praha

Chystáte se prodat nemovitost?
Pomůžeme Vám!

Máte zájem o tento byt?

Tímto, v souladu s nařízením Evropského parlamentu a Rady (EU) 2016/679, v platném znění, prohlašuji, že mi je alespoň 16 let a uděluji tak svůj souhlas se zpracováním zadaných údajů (jméno, telefon, e-mail, ip adresa) společnosti B3 Technology, s.r.o., IČ: 07330600, se sídlem Novostavby 126/23, 435 11 Lom (správce dat), za účelem předání dotazu z tohoto formuláře Vámi vybranému inzerentovi a zpětného kontaktování mé osoby. Osobní údaje bude správce zpracovávat manuálně i automaticky přímo prostřednictvím svých zaměstnanců. Informace předané tímto formulářem budou uloženy v databázi správce maximálně po dobu 10 let. Odvolání souhlasu s uložením a zpracováním poskytnutých dat lze e-mailem na info@videobydleni.cz. V případě podezření na neoprávněné použití Vámi poskytnutých údajů máte právo předat podnět k šetření Úřadu pro ochranu osobních údajů. Více informací
Chystáte se prodat nemovitost?
Pomůžeme Vám!

Inzerát si prohlédlo 13 lidí

Prodejce

Bc. Jan Macek

Bc. Jan Macek

Hlídací pes

Chcete dostávat emailem podobné nabídky prodeje bytů 2+kk v Peci pod Sněžkou?

Podobné nemovitosti


Nevyhovuje Vám typ bytu? Podívejte se na jiné kategorie bytů.


Vybrané články z našeho blogu