Prodej činžovního domu, Kladno, Štítného, 654 m2

Štítného, Kladno, Kročehlavy

21 990 000 Kč /za nemovitost HYPOTÉKA od 98 282 Kč /za měsíc
Prémioví partneři v Kladně

Informace k nemovitosti

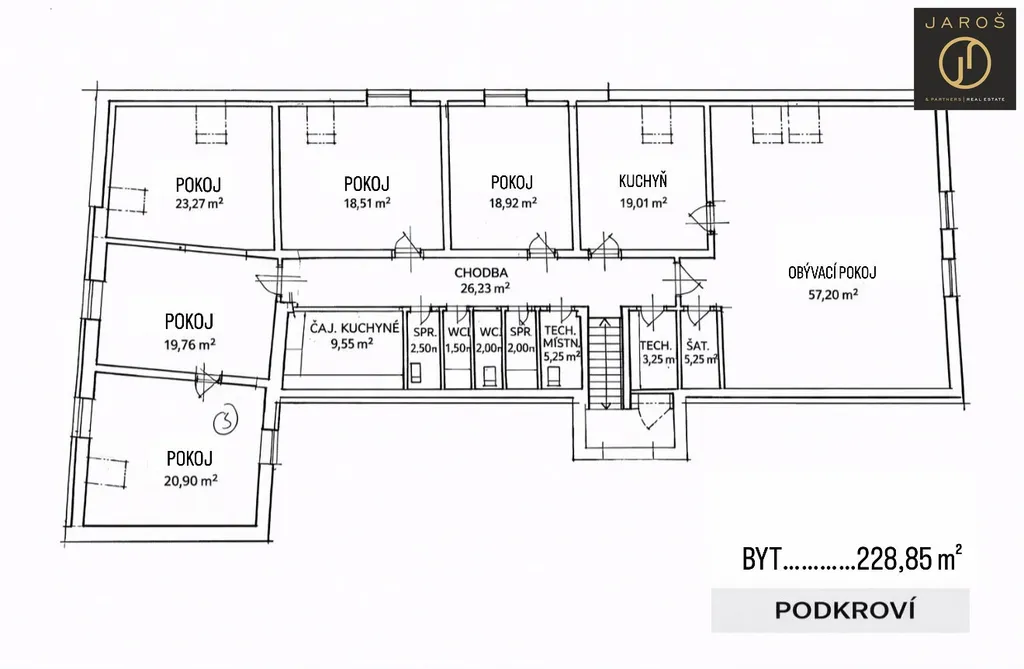
Nabízíme k prodeji víceúčelový dům v Kladně, městské části Kročehlavy, který nabízí kombinaci stávajícího výnosu a výrazného potenciálu dalšího využití. Objekt stojí na pozemku o výměře 716 m² a poskytuje celkovou užitnou plochu 654 m² rozloženou do několika funkčně odlišných částí.

V současné době je nemovitost využívána kombinovaně – v přízemí se nachází ordinace lékaře a obchod s potravinami, v 1. patře jsou kancelářské prostory a v podkroví je umístěn velký byt o dispozici 6+1. Vnitroblok domu je aktuálně pronajímán a slouží jako zázemí pro autobazar. Dům je kolaudovaný jako víceúčelový, je napojen na veškeré inženýrské sítě a vytápění i ohřev teplé vody zajišťuje plynový kondenzační kotel.

Většina prostor v domě je aktuálně obsazena nájemci, přičemž nájemní smlouvy jsou sjednány s tříměsíční výpovědní lhůtou. Nemovitost tak umožňuje pokračování ve stávajícím provozu s okamžitým výnosem, ale zároveň dává novému majiteli dostatečnou flexibilitu pro změnu konceptu nebo postupnou přestavbu.

Díky velikosti objektu, jeho dispozici a kolaudaci se nabízí možnost přeměny na bytový dům, například s až osmi bytovými jednotkami, přičemž přízemí může zůstat zachováno pro komerční využití. Právě tento mix bydlení a služeb představuje jeden z možných směrů dalšího rozvoje nemovitosti.

Lokalita nabízí veškerou občanskou vybavenost, v docházkové vzdálenosti se nachází obchody, služby i školy. Výhodou je také dobrá dopravní dostupnost směrem na Prahu.

Nemovitost je vhodná zejména pro investory nebo developery, kteří hledají objekt s již fungujícím výnosem a zároveň prostor pro další zhodnocení.

Pro více informací nebo domluvení osobní prohlídky mě neváhejte kontaktovat.

Parametry nemovitosti

Cena
21 990 000 Kč /za nemovitost Spočítat hypotéku
Aktualizováno
22. 1. 2026
Adresa
Štítného, Kladno, Kročehlavy
ID
03636
Stavba
Cihlová
Stav objektu
Velmi dobrý
Typ objektu
Patrový
Druh objektu
Samostatný
Užitná plocha
654 m2
Třída energetické náročnosti
G - Mimořádně nehospodárná
Plyn
Plynovod
Odpad
Veřejná kanalizace
Topení
Ústřední plynové
Voda
Vodovod, Studna
Výtah

Kontaktovat makléře

Máte zájem o tuto nemovistost?

Tímto, v souladu s nařízením Evropského parlamentu a Rady (EU) 2016/679, v platném znění, prohlašuji, že mi je alespoň 16 let a uděluji tak svůj souhlas se zpracováním zadaných údajů (jméno, telefon, e-mail, ip adresa) společnosti B3 Technology, s.r.o., IČ: 07330600, se sídlem Novostavby 126/23, 435 11 Lom (správce dat), za účelem předání dotazu z tohoto formuláře Vámi vybranému inzerentovi a zpětného kontaktování mé osoby. Osobní údaje bude správce zpracovávat manuálně i automaticky přímo prostřednictvím svých zaměstnanců. Informace předané tímto formulářem budou uloženy v databázi správce maximálně po dobu 10 let. Odvolání souhlasu s uložením a zpracováním poskytnutých dat lze e-mailem na info@videobydleni.cz. V případě podezření na neoprávněné použití Vámi poskytnutých údajů máte právo předat podnět k šetření Úřadu pro ochranu osobních údajů. Více informací
Chystáte se prodat nemovitost?
Pomůžeme Vám!

Inzerát si prohlédlo 18 lidí

Prodejce

Filip Hadamczik

Filip Hadamczik

Hlídací pes

Chcete dostávat emailem podobné nabídky prodeje činžovních domů v Kladně?

Podobné nemovitosti


Nevyhovuje Vám typ nemovitosti? Podívejte se na jiné kategorie komerčních.


Vybrané články z našeho blogu