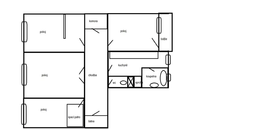
Pronájem bytu 4+1, Teplice, Jiřího Wolkera, 125 m2

Jiřího Wolkera, Teplice

18 750 Kč /za měsíc Získejte výhodnou HYPOTÉKU

(+ 500 za osobu voda, elektřina a plyn přepis)

Prémioví partneři v Teplicích

Okna a dveře

Rekonstrukce

Informace k bytu

Nabízím dlouhodobý pronájem v prostorném čtyřpokojovém bytě s lodžií a šatnou.
Byt je v 1.patře menšího činžovního domu se zahrádkou na okraji Šanova.
Byt je bez nábytku, pouze kuchyňská linka se sporákem, nový plynový kondenzační kotel. v předsíni a 2 pokojích je oddělená šatna, v nejmenším pokoji spací patro.
Koupelna je vybavená vanou i sprchovým koutem, samostatné wc.
Za domem je zahrádka pro nájemníky, v suterénu samostatný prostorný sklep.
V době jsou pouze 4 byty s bezproblémovými nájemníky.
Volné začátkem února, bude bílá nová výmalba.
Podmínkou pronájmu je vyšší kauce, v ceně nejsou energie.

Parametry bytu

Cena
18 750 Kč /za měsíc
Poznámka k ceně
+ 500 za osobu voda, elektřina a plyn přepis
Aktualizováno
7. 1. 2026
Adresa
Jiřího Wolkera, Teplice
Stavba
Cihlová
Stav objektu
Dobrý
Patro
2. z 4
Vybaveno
Ne
Lokalita objektu
Klidná část obce
Vlastnictví
Osobní
Užitná plocha
125 m2
Plocha zahrady
100 m2
Třída energetické náročnosti
D - Méně úsporná
Elektřina
230V
Plyn
Plynovod
Odpad
Veřejná kanalizace
Komunikace
Asfaltová
Telekomunikace
Kabelové rozvody
Doprava
Vlak, Silnice, MHD, Autobus
Voda
Vodovod
Topné těleso
Radiátory
Zdroj topení
Plynový kondenzační kotel
Zdroj teplé vody
Plynový kondenzační kotel
Sklep
Lodžie
Výtah
Bezbarierový přístup

Kontaktovat makléře

Realitní kancelář

Reality Fáborská

Jana Koziny 1491/26, Teplice, Trnovany

Chystáte se prodat nemovitost?
Pomůžeme Vám!

Máte zájem o tento byt?

Tímto, v souladu s nařízením Evropského parlamentu a Rady (EU) 2016/679, v platném znění, prohlašuji, že mi je alespoň 16 let a uděluji tak svůj souhlas se zpracováním zadaných údajů (jméno, telefon, e-mail, ip adresa) společnosti B3 Technology, s.r.o., IČ: 07330600, se sídlem Novostavby 126/23, 435 11 Lom (správce dat), za účelem předání dotazu z tohoto formuláře Vámi vybranému inzerentovi a zpětného kontaktování mé osoby. Osobní údaje bude správce zpracovávat manuálně i automaticky přímo prostřednictvím svých zaměstnanců. Informace předané tímto formulářem budou uloženy v databázi správce maximálně po dobu 10 let. Odvolání souhlasu s uložením a zpracováním poskytnutých dat lze e-mailem na info@videobydleni.cz. V případě podezření na neoprávněné použití Vámi poskytnutých údajů máte právo předat podnět k šetření Úřadu pro ochranu osobních údajů. Více informací
Chystáte se prodat nemovitost?
Pomůžeme Vám!

Inzerát si prohlédlo 0 lidí

Prodejce

Ing. Iva Fáborská

Ing. Iva Fáborská

Hlídací pes

Chcete dostávat emailem podobné nabídky pronájmu bytů 4+1 v Teplicích?

Podobné nemovitosti


Nevyhovuje Vám typ bytu? Podívejte se na jiné kategorie bytů.


Vybrané články z našeho blogu