Pronájem bytu 2+1, Praha - Žižkov, Biskupcova, 48 m2

Biskupcova, Praha 3

21 000 Kč /za měsíc Získejte výhodnou HYPOTÉKU

(+ provize RK, + poplatky, elektřina a plyn cca 5.500,-Kč včetně internetu)

Prémioví partneři v Praze 3

Stěhovací služby

Výkup a prodej starého nábytku

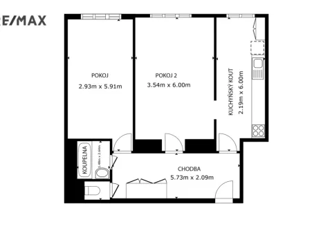
Informace k bytu

Zprostředkujeme Vám ve výhradním zastoupení majitele pronájem prostorného bytu 2+1 o velikosti 48m². Byt se nachází ve druhém patře v krásném domě s výtahem.
Kuchyňská linka je vybavena lednicí, plynovým sporákem. Ložnice je vybavena nábytkem. Obývací pokoj též vybaven. V koupelně je k dispozici i pračka, WC. Celý byt je orientovaný do vnitrobloku s klidným výhledem.

Skvělá dopravní dostupnost - velmi dobré spojení s centrem autobusem i tramvají (jen několik zastávek na Václavské náměstí, na Florenc, atd.), nedaleko jsou zastávky metra tras A a B. Zastávky tramvaje a autobusu jsou jenom dvě minuty chůze od domu.
V této tradiční rezidenční lokalitě najdete také kompletní síť obchodů a služeb, řadu mateřských i základních škol i zdravotnických zařízení. V blízkosti pěti minut několik parků: Vítkov, Parukářka, Krejcárek, a Židovské pece a rovněž Kino Aero.

Majitel mluví česky a anglicky.

Neváhejte mě kontaktovat pro více informací nebo prohlídku. Poplatky za energie (elektřina a plyn), voda, popelnice včetně internetu 5.500,-Kč.
Byt je volný ihned k nastěhování. Pronajímatel si vyhrazuje právo vybrat zájemce na základě jím zvolených kritérií. Byt je vhodný pro jednu osobu či pár. Preferujeme nekuřáky bez domácích mazlíčků. Na všechny emaily bude odpovězeno, prosím kontrolu složky spam. Ev. číslo: 32084.

Parametry bytu

Cena
21 000 Kč /za měsíc
Poznámka k ceně
+ provize RK, + poplatky, elektřina a plyn cca 5.500,-Kč včetně internetu
Aktualizováno
20. 1. 2026
Adresa
Biskupcova, Praha 3
ID
32084
Stavba
Cihlová
Stav objektu
Velmi dobrý
Patro
2. z 6
Vlastnictví
Osobní
Užitná plocha
48 m2
Podlahová plocha
48 m2
Třída energetické náročnosti
E - Nehospodárná
Ukazatel energetické náročnosti
1 kWh/m2 za rok

Kontaktovat makléře

Máte zájem o tento byt?

Tímto, v souladu s nařízením Evropského parlamentu a Rady (EU) 2016/679, v platném znění, prohlašuji, že mi je alespoň 16 let a uděluji tak svůj souhlas se zpracováním zadaných údajů (jméno, telefon, e-mail, ip adresa) společnosti B3 Technology, s.r.o., IČ: 07330600, se sídlem Novostavby 126/23, 435 11 Lom (správce dat), za účelem předání dotazu z tohoto formuláře Vámi vybranému inzerentovi a zpětného kontaktování mé osoby. Osobní údaje bude správce zpracovávat manuálně i automaticky přímo prostřednictvím svých zaměstnanců. Informace předané tímto formulářem budou uloženy v databázi správce maximálně po dobu 10 let. Odvolání souhlasu s uložením a zpracováním poskytnutých dat lze e-mailem na info@videobydleni.cz. V případě podezření na neoprávněné použití Vámi poskytnutých údajů máte právo předat podnět k šetření Úřadu pro ochranu osobních údajů. Více informací
Chystáte se prodat nemovitost?
Pomůžeme Vám!

Inzerát si prohlédlo 0 lidí

Prodejce

Martina Novotná (Voslářová)

Martina Novotná (Voslářová)

Hlídací pes

Chcete dostávat emailem podobné nabídky pronájmu bytů 2+1 v Praze 3?

Podobné nemovitosti


Nevyhovuje Vám typ bytu? Podívejte se na jiné kategorie bytů.


Vybrané články z našeho blogu