Pronájem obchodního prostoru, Praha, Chrudimská, 257 m2

Chrudimská, Praha 3

102 800 Kč /za měsíc Získejte výhodnou HYPOTÉKU

(Plus zálohy na služby: 135,- Kč/m2/měsíc vč. DPH (vč. záloh na vlastní spotřebu energií))

Prémioví partneři v Praze 3

Stěhovací služby

Výkup a prodej starého nábytku

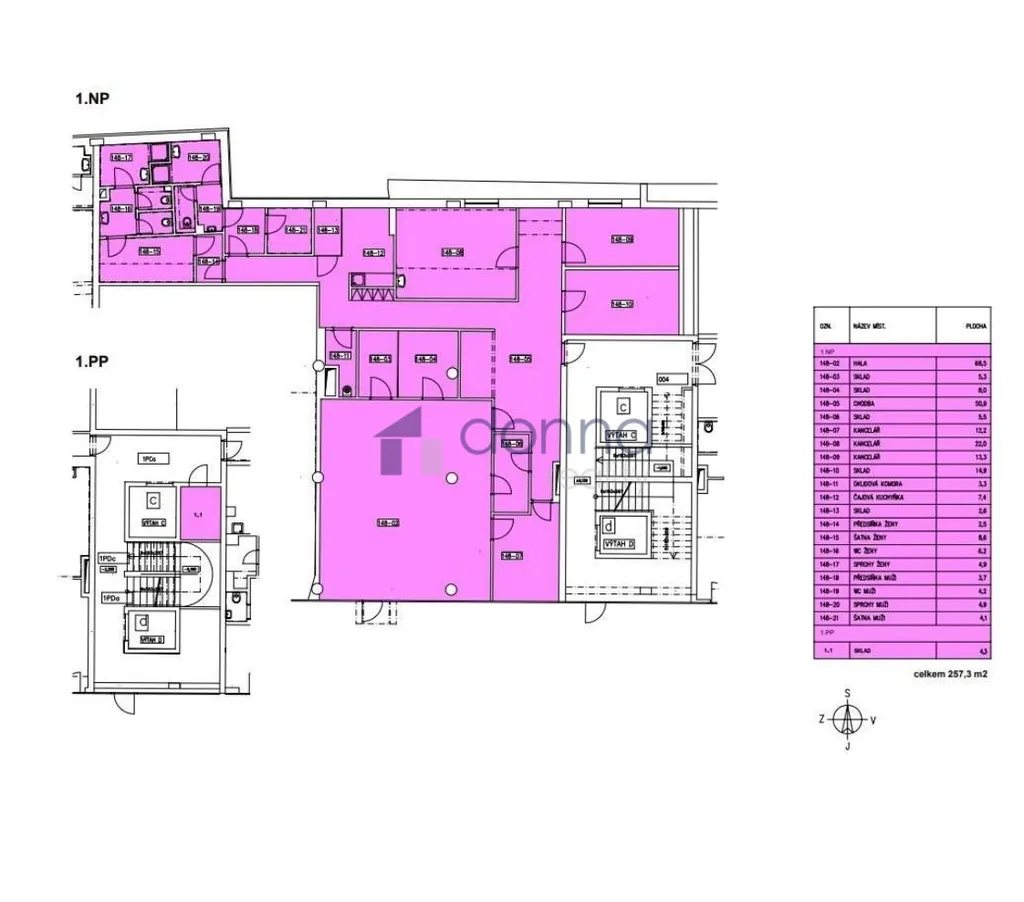
Informace k nemovitosti

Neplatíte provizi! Nabízíme k pronájmu nebytové prostory s pronajímatelnou plochou o výměře 257 m2. Prostory se nacházejí ve 1.NP se vstupem z pasáže objektu AGORA FLORA, která je spojnicí ulice Hradecké a Chrudimské. Nabízené prostory mají okna a výlohy do pasáže,
dříve sloužily jako pobočka České pošty.
Technická specifikace prostor:
• elektrická energie, přívod teplé a studené vody,
• vlastní sociální zázemí
• vytápění, chlazení, nucené větrání
Vybavení budovy:
• ostraha 24/7
• EPS, CCTV
• vstup na čipy
• možnost pronájmu garážích stání přímo v objektu
Komplex má exkluzivní polohu, nachází se v centru Vinohrad, a je výborně dostupný pražskou MHD i autem. Stanice metra A – Flora, tramvajové i autobusové zastávky jsou v bezprostřední blízkosti objektu. Objekt sousedí s ulicí Chrudimskou, Slezskou a Hradeckou, má vlastní pasáž s obchody propojující Chrudimskou a Hradeckou ulici.
V objektu se nachází mimo jiné:
• prodejna PENNY,
• fitness centrum,
• kadeřnictví, manikúra,
• ordinace lékařů,
• restaurace,
• kavárna
Pronajímatel je připraven:
• konzultovat technické požadavky nájemce na úpravu prostor
• realizovat stavební úpravy prostor
• zajistit projednávání požadovaných změn s dotčenými orgány

Zúčtovatelné zálohy na služby a vlastní spotřebu: výše záloh bude stanovena dle typu využití zvoleného provozu.
Doba nájmu: minimálně 3 roky.
Jistina: 2 x měsíční nájmy (vč. DPH) + 2 x zálohy na služby.
Termín počátku nájemního vztahu dle dohody.
Neplatíte provizi!

Parametry nemovitosti

Cena
102 800 Kč /za měsíc
Poznámka k ceně
Plus zálohy na služby: 135,- Kč/m2/měsíc vč. DPH (vč. záloh na vlastní spotřebu energií)
Aktualizováno
22. 1. 2026
Adresa
Chrudimská, Praha 3
ID
11162
Stavba
Cihlová
Stav objektu
Velmi dobrý
Vybaveno
Ne
Typ objektu
Patrový
Lokalita objektu
Centrum obce
Užitná plocha
257 m2
Třída energetické náročnosti
G - Mimořádně nehospodárná
Převod do OV

Kontaktovat makléře

Máte zájem o tuto nemovistost?

Tímto, v souladu s nařízením Evropského parlamentu a Rady (EU) 2016/679, v platném znění, prohlašuji, že mi je alespoň 16 let a uděluji tak svůj souhlas se zpracováním zadaných údajů (jméno, telefon, e-mail, ip adresa) společnosti B3 Technology, s.r.o., IČ: 07330600, se sídlem Novostavby 126/23, 435 11 Lom (správce dat), za účelem předání dotazu z tohoto formuláře Vámi vybranému inzerentovi a zpětného kontaktování mé osoby. Osobní údaje bude správce zpracovávat manuálně i automaticky přímo prostřednictvím svých zaměstnanců. Informace předané tímto formulářem budou uloženy v databázi správce maximálně po dobu 10 let. Odvolání souhlasu s uložením a zpracováním poskytnutých dat lze e-mailem na info@videobydleni.cz. V případě podezření na neoprávněné použití Vámi poskytnutých údajů máte právo předat podnět k šetření Úřadu pro ochranu osobních údajů. Více informací
Chystáte se prodat nemovitost?
Pomůžeme Vám!

Inzerát si prohlédlo 1 lidí

Prodejce

Oksana Turri

Oksana Turri

Hlídací pes

Chcete dostávat emailem podobné nabídky pronájmu obchodních prostor v Praze 3?

Podobné nemovitosti


Nevyhovuje Vám typ nemovitosti? Podívejte se na jiné kategorie komerčních.


Vybrané články z našeho blogu