Pronájem obchodního prostoru, Praha, Chrudimská, 360 m2 (ID: 4161818)

Chrudimská, Praha 3

126 000 Kč /za měsíc Získejte výhodnou HYPOTÉKU

(Nájemce neplatí provizi RK)

Prémioví partneři v Praze 3

Stěhovací služby

Výkup a prodej starého nábytku

Informace k nemovitosti

Neplatíte provizi!
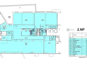
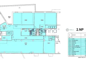
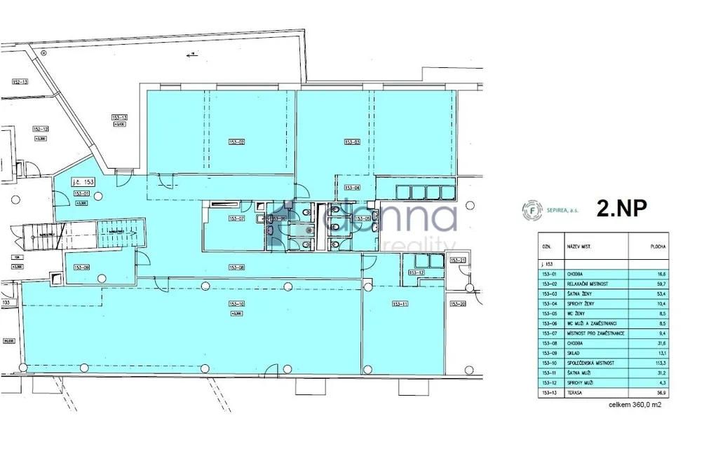
Nabízíme k pronájmu nebytové prostory s pronajímatelnou plochou o výměře 360 m2. Prostory se nacházejí ve 2.NP s výtahem se vstupem z pasáže objektu AGORA FLORA, která je spojnicí ulice Hradecké a Chrudimské. Nabízené prostory mají okna jak do pasáže, tak i do vnitrobloku a jsou aktuálně využívané jako studio Hot Yogy. Prostory jsou zkolaudovány jako „centrum volného času“, takže jsou vhodné pro aktivity podobného zaměření (yoga, pilates, pohybové aktivity, taneční studio, masáže apod.).
Technická specifikace prostor:
• elektrická energie, přívod teplé a studené vody,
• vlastní sociální zázemí
• vytápění, chlazení, nucené větrání
Vybavení budovy:
• ostraha 24/7
• EPS, CCTV
• vstup na čipy
• možnost pronájmu garážích stání přímo v objektu
Komplex má exkluzivní polohu, nachází se v centru Vinohrad, a je výborně dostupný pražskou MHD i autem. Stanice metra A – Flora, tramvajové i autobusové zastávky jsou v bezprostřední blízkosti objektu. Objekt sousedí s ulicí Chrudimskou, Slezskou a Hradeckou, má vlastní pasáž s obchody propojující Chrudimskou a Hradeckou ulici.

V objektu se nachází mimo jiné:
• prodejna PENNY,
• fitness centrum,
• kadeřnictví, manikúra,
• ordinace lékařů,
• restaurace,
• kavárna

Zúčtovatelné zálohy na služby a vlastní spotřebu: výše záloh bude stanovena dle typu využití zvoleného provozu.
Doba nájmu: minimálně 3 roky.
Jistina: 2 x měsíční nájmy (vč. DPH) + 2 x zálohy na služby.
Termín počátku nájemního vztahu dle dohody.
Neplatíte provizi!

Parametry nemovitosti

Cena
126 000 Kč /za měsíc
Poznámka k ceně
Nájemce neplatí provizi RK
Aktualizováno
23. 1. 2026
Adresa
Chrudimská, Praha 3
ID
11160
Stavba
Montovaná
Stav objektu
Velmi dobrý
Patro
2.
Vybaveno
Částečně
Typ objektu
Patrový
Lokalita objektu
Centrum obce
Užitná plocha
360 m2
Třída energetické náročnosti
G - Mimořádně nehospodárná
Výtah
Převod do OV

Kontaktovat makléře

Máte zájem o tuto nemovistost?

Tímto, v souladu s nařízením Evropského parlamentu a Rady (EU) 2016/679, v platném znění, prohlašuji, že mi je alespoň 16 let a uděluji tak svůj souhlas se zpracováním zadaných údajů (jméno, telefon, e-mail, ip adresa) společnosti B3 Technology, s.r.o., IČ: 07330600, se sídlem Novostavby 126/23, 435 11 Lom (správce dat), za účelem předání dotazu z tohoto formuláře Vámi vybranému inzerentovi a zpětného kontaktování mé osoby. Osobní údaje bude správce zpracovávat manuálně i automaticky přímo prostřednictvím svých zaměstnanců. Informace předané tímto formulářem budou uloženy v databázi správce maximálně po dobu 10 let. Odvolání souhlasu s uložením a zpracováním poskytnutých dat lze e-mailem na info@videobydleni.cz. V případě podezření na neoprávněné použití Vámi poskytnutých údajů máte právo předat podnět k šetření Úřadu pro ochranu osobních údajů. Více informací
Chystáte se prodat nemovitost?
Pomůžeme Vám!

Inzerát si prohlédlo 1 lidí

Prodejce

Oksana Turri

Oksana Turri

Hlídací pes

Chcete dostávat emailem podobné nabídky pronájmu obchodních prostor v Praze 3?

Podobné nemovitosti


Nevyhovuje Vám typ nemovitosti? Podívejte se na jiné kategorie komerčních.


Vybrané články z našeho blogu