Pronájem ubytování, Přerov nad Labem, 445 m2

Přerov nad Labem

80 000 Kč /za měsíc Získejte výhodnou HYPOTÉKU

(+ energie, provize RK)

Prémioví partneři v Přerově nad Labem

Informace k nemovitosti

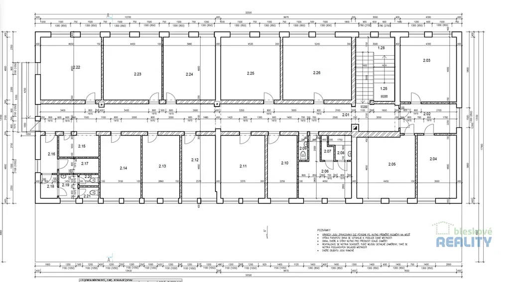
Nabízíme k pronájmu komerční zařízení pro ubytování o celkové ploše 445,6 m² s kapacitou až 36 osob.
Prostory se nacházejí v 1. patře objektu.
Zařízení se pronajímá výhradně jako celek (nikoliv po jednotlivých pokojích).

Dispozice:
– 6× čtyřlůžkový pokoj
– 6× dvoulůžkový pokoj
– hlavní kuchyňka + menší kuchyň
– oddělené dámské a pánské sociální zařízení
– kancelář (možnost úpravy na další pokoj)
– sklad (možnost úpravy na další pokoj)
Vybavení:
– postele/palandy, skříně, lednice
– umyvadlo ve většině pokojů
– pračka v přízemí
– internet v objektu
– samostatné měření elektřiny
Část pokojů je po rekonstrukci, část v původním stavu. Úpravy možné po dohodě s nájemcem.

Lokalita:
Objekt se nachází u fotbalového hřiště v Přerově nad Labem.
– parkování až pro 8 vozidel
– autobusová zastávka cca 13 minut pěšky
– potraviny cca 16 minut pěšky
– v přízemí objektu je bufet/hospůdka (samostatný provoz, není součástí pronájmu)

Vhodné zejména pro agenturní nebo firemní ubytování zaměstnanců či dlouhodobé provozování ubytování.
Nájemné: 80 000 Kč/měsíc + energie
K dispozici dle dohody.

Pro více informací nebo domluvení prohlídky nás kontaktujte.

Parametry nemovitosti

Cena
80 000 Kč /za měsíc
Poznámka k ceně
+ energie, provize RK
Aktualizováno
26. 3. 2026
Adresa
Přerov nad Labem
ID
0898
Stavba
Smíšená
Stav objektu
Dobrý
Vybaveno
Částečně
Užitná plocha
445 m2
Zastavěná plocha
470 m2
Třída energetické náročnosti
G - Mimořádně nehospodárná
Elektřina
230V
Odpad
Septik, Jímka
Komunikace
Zpevněná
Voda
Vodovod
Topné těleso
Radiátory
Zdroj topení
Elektrokotel
Zdroj teplé vody
Elektrokotel

Kontaktovat makléře

Realitní kancelář

Bleskové reality

Masarykovo náměstí 34/15, Brandýs nad Labem-Stará Boleslav, Brandýs nad Labe

Chystáte se prodat nemovitost?
Pomůžeme Vám!

Máte zájem o tuto nemovistost?

Tímto, v souladu s nařízením Evropského parlamentu a Rady (EU) 2016/679, v platném znění, prohlašuji, že mi je alespoň 16 let a uděluji tak svůj souhlas se zpracováním zadaných údajů (jméno, telefon, e-mail, ip adresa) společnosti B3 Technology, s.r.o., IČ: 07330600, se sídlem Novostavby 126/23, 435 11 Lom (správce dat), za účelem předání dotazu z tohoto formuláře Vámi vybranému inzerentovi a zpětného kontaktování mé osoby. Osobní údaje bude správce zpracovávat manuálně i automaticky přímo prostřednictvím svých zaměstnanců. Informace předané tímto formulářem budou uloženy v databázi správce maximálně po dobu 10 let. Odvolání souhlasu s uložením a zpracováním poskytnutých dat lze e-mailem na info@videobydleni.cz. V případě podezření na neoprávněné použití Vámi poskytnutých údajů máte právo předat podnět k šetření Úřadu pro ochranu osobních údajů. Více informací
Chystáte se prodat nemovitost?
Pomůžeme Vám!

Inzerát si prohlédlo 7 lidí

Prodejce

Václav Růžička

Václav Růžička

Hlídací pes

Chcete dostávat emailem podobné nabídky pronájmu ubytování v Přerově nad Labem?


Nevyhovuje Vám typ nemovitosti? Podívejte se na jiné kategorie komerčních.


Vybrané články z našeho blogu