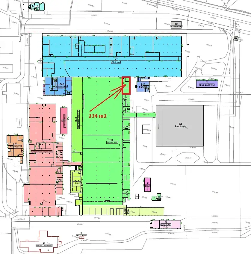
Pronájem skladu, Louny, Postoloprtská, 234 m2 (ID: 4182298)

Postoloprtská, Louny

100 Kč /za metr čtvereční / měsíc Získejte výhodnou HYPOTÉKU
Prémioví partneři v Lounech

Okna a dveře

Pojištění a finance

Informace k nemovitosti

BEZ PROVIZE OD PŘÍMÉHO MAJITELE
Nabízíme k pronájmu skladovací a výrobní prostory v průmyslovém areálu v Lounech s výborným napojením na dálnici D7 směřující k německým hranicím nebo do Prahy. Areál nabízí množství jednotek různého typu a velikostí, již od 200 m2 a více (sklady, výrobní prostory, kanceláře, venkovní zpevněná a nezpevněná plocha, atd.) Přijďte a u nás si určitě vyberete!

DOSTUPNÝ SKLAD
◉ 235 m2 – nově připravené skladově výrobní prostory (původní zaměstnanecká jídelna), temperovaná, skládající se ze tří místností s možností dispozičních změn a úprav, samostatný vstup do prostor, samostatné prostory pod uzávěrem, zděné, světlá výška 3 m, dostatečný příkon el. energie, zavedena voda, možnost společného zázemí (WC, sprchy, šatny, atd.), možné jeho variabilní využití.

DALŠÍ SKLADY
◉ v areálu další široká nabídka skladově výrobních prostor až 20.000 m2
◉ možnost pronájmu již od 200 m2 a více

DOSTUPNOST
◉ k dispozici ihned

SPECIFIKACE
◉ temperované prostory
◉ nosnost podlah min. 5t/m2
◉ železniční vlečka
◉ vjezd do areálu pro TIR
◉ velké manipulační plochy
◉ před areálem vlastní parkoviště + zastávka MHD Louny
◉ světlá výška 3 m
◉ možnost pronájmu kanceláří v areálu
◉ přímý vjezd
◉ společné zázemí (WC, sprchy, šatna, atd.)

LOKALITA
◉ Louny, Ústecký kraj, areál se nachází přímo u dálnice D7 (exit D7, Louny-západ)
◉ vzdálenosti: německé hranice 50 km, Praha 60 km

CENA
◉ od 100,- Kč/m2/měsíc (4 EUR/m2/měsíc)

POBÍDKY
◉ nabízíme rentfree
◉ dočasné snížení nájemného
◉ zajistíme stavební úpravy a požadavky na míru a na přání
◉ v případě zájmu o pronájem, se u nás určitě DOMLUVÍTE

Více informací, vč. prohlídky, na vyžádání zabezpečíme obratem.

Parametry nemovitosti

Cena
100 Kč /za metr čtvereční / měsíc
Aktualizováno
18. 5. 2026
Adresa
Postoloprtská, Louny
Stavba
Cihlová
Stav objektu
Dobrý
Patro
1.
Lokalita objektu
Okraj obce
Užitná plocha
234 m2
Třída energetické náročnosti
G - Mimořádně nehospodárná
Ukazatel energetické náročnosti
843 kWh/m2 za rok
Elektřina
230V
Plyn
Plynovod
Odpad
Veřejná kanalizace
Komunikace
Asfaltová
Doprava
Vlak, Dálnice, Silnice, MHD, Autobus
Voda
Vodovod
Topné těleso
Radiátory
Zdroj topení
Přímotop
Zdroj teplé vody
Bojler - elektro
Bezbarierový přístup
Parkování

Kontaktovat makléře

Realitní kancelář

SPGroup

Pacovská 2104/1, Praha

Chystáte se prodat nemovitost?
Pomůžeme Vám!

Máte zájem o tuto nemovistost?

Tímto, v souladu s nařízením Evropského parlamentu a Rady (EU) 2016/679, v platném znění, prohlašuji, že mi je alespoň 16 let a uděluji tak svůj souhlas se zpracováním zadaných údajů (jméno, telefon, e-mail, ip adresa) společnosti B3 Technology, s.r.o., IČ: 07330600, se sídlem Novostavby 126/23, 435 11 Lom (správce dat), za účelem předání dotazu z tohoto formuláře Vámi vybranému inzerentovi a zpětného kontaktování mé osoby. Osobní údaje bude správce zpracovávat manuálně i automaticky přímo prostřednictvím svých zaměstnanců. Informace předané tímto formulářem budou uloženy v databázi správce maximálně po dobu 10 let. Odvolání souhlasu s uložením a zpracováním poskytnutých dat lze e-mailem na info@videobydleni.cz. V případě podezření na neoprávněné použití Vámi poskytnutých údajů máte právo předat podnět k šetření Úřadu pro ochranu osobních údajů. Více informací
Chystáte se prodat nemovitost?
Pomůžeme Vám!
Theleadway banner

Inzerát si prohlédlo 9 lidí

Prodejce

Jiří Bláha

Jiří Bláha

Hlídací pes

Chcete dostávat emailem podobné nabídky pronájmu skladů v Lounech?

Podobné nemovitosti


Nevyhovuje Vám typ nemovitosti? Podívejte se na jiné kategorie komerčních.


Vybrané články z našeho blogu