Pronájem bytu 2+kk, České Budějovice, Novohradská, 50 m2 (ID: 4184225)

Novohradská, České Budějovice 6

16 500 Kč /za měsíc Získejte výhodnou HYPOTÉKU
Prémioví partneři v Českých Budějovicích

Výkup a prodej starého nábytku

Informace k bytu

Pronájem bytu č. 3 | 2+kk | 50 m² | Novohradská 74, České Budějovice

Nabízíme k pronájmu moderní bytovou jednotku č. 3 o dispozici 2+kk a celkové ploše 49,6 m², situovanou v 1. nadzemním podlaží kompletně zrekonstruovaného bytového domu na adrese Novohradská 74, České Budějovice, kde se nachází celkem 6 bytových jednotek.

Jedná se o kvalitní a komfortní bydlení v atraktivní lokalitě v blízkosti centra města i přírody.

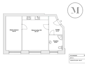
Dispozice bytu (49,6 m²)

Chodba – 5,4 m²

Koupelna – 5,6 m²

Obývací pokoj s kuchyňským koutem – 24,1 m²

Obytná místnost (ložnice) – 14,5 m²

Byt nabízí světlý a vzdušný interiér s moderním řešením prostoru.

Nájemné a podmínky

Nájemné: 16 500 Kč / měsíc

Energie a služby: do 3 000 Kč / měsíc

Kauce: 25 000 Kč

Provize RK: 16 500 Kč + DPH

Standardy a vybavení:

Venkovní žaluzie

Moderní koupelna se sprchovým koutem

Nová kuchyňská linka včetně vestavných spotřebičů

Možnost připojení k internetu

Dům je podsklepený – možnost využití těchto prostorů

Výhody domu:

Energetický štítek A (velmi úsporná budova)

Tepelné čerpadlo – nízké provozní náklady

Parkovací stání ve vnitrobloku v ceně nájmu

Klidný dům s menším počtem bytových jednotek

Možnost posezení ve vnitrobloku

Lokalita:

Novohradská patří mezi velmi vyhledávané lokality.
V blízkosti se nachází Malý jez (Malák), cyklostezky, sportoviště, školy, školky, pošta, Penny Market i zastávka MHD. Centrum Českých Budějovic je dostupné během několika minut.

Byt je k nastěhování již koncem února.

V případě zájmu o prohlídku nebo bližší informace mě neváhejte kontaktovat. Ráda Vás provedu tímto bytem i dalšími jednotkami, abyste si mohli vybrat tu pravou.

Parametry bytu

Cena
16 500 Kč /za měsíc
Aktualizováno
18. 2. 2026
Adresa
Novohradská, České Budějovice 6
ID
0000000003
Stavba
Cihlová
Stav objektu
Po rekonstrukci
Patro
1.
Lokalita objektu
Klidná část obce
Vlastnictví
Osobní
Užitná plocha
50 m2
Třída energetické náročnosti
A - Mimořádně úsporná
Elektřina
230V
Odpad
Veřejná kanalizace
Komunikace
Asfaltová
Telekomunikace
Internet
Doprava
Vlak, Dálnice, Silnice, MHD, Autobus
Voda
Vodovod
Zdroj topení
Tepelné čerpadlo
Zdroj teplé vody
Tepelné čerpadlo
Sklep
Výtah
Bezbarierový přístup
Parkování

Kontaktovat makléře

Realitní kancelář

MYNARO.cz

Vodní 561/8a, České Budějovice

Chystáte se prodat nemovitost?
Pomůžeme Vám!

Máte zájem o tento byt?

Tímto, v souladu s nařízením Evropského parlamentu a Rady (EU) 2016/679, v platném znění, prohlašuji, že mi je alespoň 16 let a uděluji tak svůj souhlas se zpracováním zadaných údajů (jméno, telefon, e-mail, ip adresa) společnosti B3 Technology, s.r.o., IČ: 07330600, se sídlem Novostavby 126/23, 435 11 Lom (správce dat), za účelem předání dotazu z tohoto formuláře Vámi vybranému inzerentovi a zpětného kontaktování mé osoby. Osobní údaje bude správce zpracovávat manuálně i automaticky přímo prostřednictvím svých zaměstnanců. Informace předané tímto formulářem budou uloženy v databázi správce maximálně po dobu 10 let. Odvolání souhlasu s uložením a zpracováním poskytnutých dat lze e-mailem na info@videobydleni.cz. V případě podezření na neoprávněné použití Vámi poskytnutých údajů máte právo předat podnět k šetření Úřadu pro ochranu osobních údajů. Více informací
Chystáte se prodat nemovitost?
Pomůžeme Vám!

Inzerát si prohlédlo 0 lidí

Prodejce

Ing. Monika Vontorová

Ing. Monika Vontorová

Hlídací pes

Chcete dostávat emailem podobné nabídky pronájmu bytů 2+kk v Českých Budějovicích?

Podobné nemovitosti


Nevyhovuje Vám typ bytu? Podívejte se na jiné kategorie bytů.


Vybrané články z našeho blogu