Pronájem bytu 2+kk, České Budějovice, Novohradská, 53 m2

Novohradská, České Budějovice 6

17 000 Kč /za měsíc Získejte výhodnou HYPOTÉKU
Prémioví partneři v Českých Budějovicích

Výkup a prodej starého nábytku

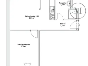
Informace k bytu

Pronájem bytu č. 4 | 2+kk | 53,4 m² | Klimatizace | Novohradská 74, České Budějovice

Nabízíme k pronájmu moderní bytovou jednotku č. 4 o dispozici 2+kk a celkové ploše 53,4 m², nacházející se ve 2. nadzemním podlaží (podkrovní byt) kompletně zrekonstruovaného domu na adrese Novohradská 74.

Tato bytová jednotka je součástí klidného činžovního domu s pouhými 6 bytovými jednotkami, což zajišťuje příjemné, komorní a nerušené bydlení, přitom tak blízko centru města.

Byt nabízí vzdušný prostor, dostatek denního světla a díky umístění v horním patře i větší soukromí.

Dispozice bytu (53,4 m²)

Zádveří – 3,1 m²

Obývací pokoj s kuchyňským koutem – 26,1 m²

Obytná místnost (ložnice) – 17,1 m²

Koupelna – 7,0 m²

Dominantou bytu je prostorný obývací pokoj s kuchyňským koutem. Moderní koupelna je vybavena sprchovým koutem. Podkrovní charakter bytu vytváří velmi příjemnou atmosféru.

Nájemné a podmínky:

Nájemné: 17 000 Kč / měsíc
Energie a služby: do 3 000 Kč / měsíc
Kauce: 25.500,- Kč
provize RK: 17.000 Kč + DPH

Standardy a vybavení:

Klimatizace (komfort i během letních měsíců)
Nová kuchyňská linka včetně spotřebičů / bez myčky /
Moderní koupelna
Možnost připojení k internetu
Dům je podsklepený – možnost sklepa

Výhody domu:

Energetický štítek A – velmi úsporná budova

Tepelné čerpadlo – nízké provozní náklady

Parkovací stání ve vnitrobloku v ceně nájmu

Vnitroblok s možností posezení

Menší počet bytových jednotek = klidné bydlení

Byt je ideální pro jednotlivce nebo pár hledající moderní, úsporné a komfortní bydlení v žádané lokalitě.
K nastěhování již koncem února 2026.
Ráda Vás osobně provedu tímto bytem i ostatními jednotkami v domě a pomohu Vám s výběrem té pravé.

Parametry bytu

Cena
17 000 Kč /za měsíc
Aktualizováno
18. 2. 2026
Adresa
Novohradská, České Budějovice 6
ID
0000000004
Stavba
Cihlová
Stav objektu
Po rekonstrukci
Patro
2.
Lokalita objektu
Klidná část obce
Vlastnictví
Osobní
Užitná plocha
53 m2
Třída energetické náročnosti
A - Mimořádně úsporná
Elektřina
230V
Odpad
Veřejná kanalizace
Komunikace
Asfaltová
Telekomunikace
Internet
Doprava
Vlak, Dálnice, Silnice, MHD, Autobus
Voda
Vodovod
Zdroj topení
Tepelné čerpadlo
Zdroj teplé vody
Tepelné čerpadlo
Sklep
Výtah
Bezbarierový přístup
Parkování

Kontaktovat makléře

Realitní kancelář

MYNARO.cz

Vodní 561/8a, České Budějovice

Chystáte se prodat nemovitost?
Pomůžeme Vám!

Máte zájem o tento byt?

Tímto, v souladu s nařízením Evropského parlamentu a Rady (EU) 2016/679, v platném znění, prohlašuji, že mi je alespoň 16 let a uděluji tak svůj souhlas se zpracováním zadaných údajů (jméno, telefon, e-mail, ip adresa) společnosti B3 Technology, s.r.o., IČ: 07330600, se sídlem Novostavby 126/23, 435 11 Lom (správce dat), za účelem předání dotazu z tohoto formuláře Vámi vybranému inzerentovi a zpětného kontaktování mé osoby. Osobní údaje bude správce zpracovávat manuálně i automaticky přímo prostřednictvím svých zaměstnanců. Informace předané tímto formulářem budou uloženy v databázi správce maximálně po dobu 10 let. Odvolání souhlasu s uložením a zpracováním poskytnutých dat lze e-mailem na info@videobydleni.cz. V případě podezření na neoprávněné použití Vámi poskytnutých údajů máte právo předat podnět k šetření Úřadu pro ochranu osobních údajů. Více informací
Chystáte se prodat nemovitost?
Pomůžeme Vám!

Inzerát si prohlédlo 0 lidí

Prodejce

Ing. Monika Vontorová

Ing. Monika Vontorová

Hlídací pes

Chcete dostávat emailem podobné nabídky pronájmu bytů 2+kk v Českých Budějovicích?

Podobné nemovitosti


Nevyhovuje Vám typ bytu? Podívejte se na jiné kategorie bytů.


Vybrané články z našeho blogu