Pronájem kanceláře, Praha - Nové Město, Myslíkova, 131 m2

Myslíkova, Praha, Nové Město

12,5 € /za metr čtvereční / měsíc Získejte výhodnou HYPOTÉKU

(Nájemné 41.090 Kč/měsíc + DPH. Poplatky 12.000 Kč/měsíc + samostatně měřená elektřina dle reálné spotřeby + DPH. Parkování 140 EUR/stání/měsíc + DPH)

Prémioví partneři v Praze 1

Stěhovací služby

Výkup a prodej starého nábytku

Informace k nemovitosti

MYSLÍKOVA 31 je historická budova umístěná přímo v centru Prahy. V budově se nachází kanceláře, obchodní jednotky a parkovací místa k pronájmu.

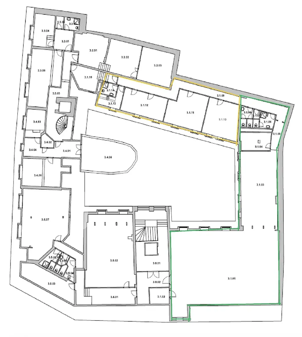
Nabízíme k pronájmu podkrovní kancelář s klimatizací o velikosti 131 m2 ve 3.patře (na plánku označena žlutě):
• dispozičně 3 samostatné neprůchozí kanceláře
• kuchyňka
• vlastní toalety
• klimatizace
• dřevěná podlaha

Parkování v budově na plošině. Nájemné 140 EUR/stání/měsíc + DPH. K dispozici 2 místa pro menší vozy.

Poplatky za služby (kancelář) – 12.000 Kč/měsíc + spotřeba elektřiny + DPH.

Doba nájmu min. 1 rok.

K nastěhování ihned.

NÁJEMCE NEHRADÍ PROVIZI.

Parametry nemovitosti

Cena
12,5 € /za metr čtvereční / měsíc
Poznámka k ceně
Nájemné 41.090 Kč/měsíc + DPH. Poplatky 12.000 Kč/měsíc + samostatně měřená elektřina dle reálné spotřeby + DPH. Parkování 140 EUR/stání/měsíc + DPH
Aktualizováno
19. 4. 2026
Adresa
Myslíkova, Praha, Nové Město
ID
00061-5
Stavba
Cihlová
Stav objektu
Dobrý
Patro
4.
Vybaveno
Ne
Užitná plocha
131 m2
Třída energetické náročnosti
G - Mimořádně nehospodárná
Výtah
Parkování

Kontaktovat makléře

Máte zájem o tuto nemovistost?

Tímto, v souladu s nařízením Evropského parlamentu a Rady (EU) 2016/679, v platném znění, prohlašuji, že mi je alespoň 16 let a uděluji tak svůj souhlas se zpracováním zadaných údajů (jméno, telefon, e-mail, ip adresa) společnosti B3 Technology, s.r.o., IČ: 07330600, se sídlem Novostavby 126/23, 435 11 Lom (správce dat), za účelem předání dotazu z tohoto formuláře Vámi vybranému inzerentovi a zpětného kontaktování mé osoby. Osobní údaje bude správce zpracovávat manuálně i automaticky přímo prostřednictvím svých zaměstnanců. Informace předané tímto formulářem budou uloženy v databázi správce maximálně po dobu 10 let. Odvolání souhlasu s uložením a zpracováním poskytnutých dat lze e-mailem na info@videobydleni.cz. V případě podezření na neoprávněné použití Vámi poskytnutých údajů máte právo předat podnět k šetření Úřadu pro ochranu osobních údajů. Více informací
Chystáte se prodat nemovitost?
Pomůžeme Vám!

Inzerát si prohlédlo 7 lidí

Prodejce

Katarina Wojtusiak, MRICS

Katarina Wojtusiak, MRICS

Hlídací pes

Chcete dostávat emailem podobné nabídky pronájmu kanceláří v Praze 1?

Podobné nemovitosti


Nevyhovuje Vám typ nemovitosti? Podívejte se na jiné kategorie komerčních.


Vybrané články z našeho blogu