Prodej ubytování, Rokytnice nad Jizerou, 228 m2

Rokytnice nad Jizerou, Dolní Rokytnice

12 750 000 Kč /za nemovitost HYPOTÉKA od 56 985 Kč /za měsíc

(Cena je včetně provize a právního servisu.)

Prémioví partneři v Rokytnici nad Jizerou

Rekonstrukce

Úklidové služby

Informace k nemovitosti

INVESTIČNÍ NABÍDKA – ZABĚHNUTÝ PENZION V SRDCI KRKONOŠ
Nabízíme k prodeji zavedený a plně funkční penzion v jedné z nejvyhledávanějších horských lokalit Krkonoš – Rokytnice nad Jizerou. Nemovitost představuje atraktivní investiční příležitost s možností okamžitého pokračování v provozu ubytovacích služeb.
Velkou výhodou je strategická poloha v docházkové vzdálenosti od lyžařských areálů i centra města, což zajišťuje vysokou obsazenost v zimní i letní sezóně.
Pouhých 150 m od penzionu se nachází Skiareál Rokytnice – Koupaliště, oblíbený areál pro rodiny s dětmi a začínající lyžaře. Hlavní krkonošské středisko Skiareál Rokytnice – Horní Domky je vzdáleno přibližně 1,5 km. Centrum obce s restauracemi, obchody, službami a zastávkou skibusu je vzdáleno pouze cca 250 m.
Hlavní benefity nemovitosti
- zavedený penzion s historií a stálou klientelou
- objekt je po rekonstrukci a nevyžaduje žádné další investice
- atraktivní turistická lokalita v Krkonoších
- celoroční využití – zimní i letní sezóna
- kapacita 25 lůžek + přistýlky
- parkování pro hosty přímo u objektu
- možnost okamžitého pokračování v podnikání

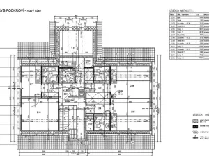
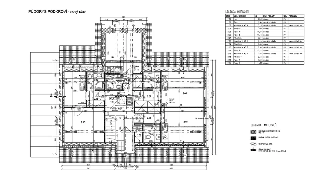
Kapacita a dispozice penzionu
Celková kapacita penzionu činí 25 lůžek (+ možnost přistýlek) a je rozdělena do několika samostatných apartmánů:
• 2× čtyřlůžkový apartmán
• 2× pětilůžkový apartmán
• 2× dvoulůžkový apartmán
• 1× třílůžkový apartmán
Každý apartmán je plně vybaven a nabízí hostům komfortní zázemí:
• vlastní kuchyňka (vařič, lednice, mikrovlnná trouba, rychlovarná konvice)
• koupelna se sprchovým koutem a WC
• televize
• Wi-Fi připojení
Součástí objektu je také společenská místnost s kuchyní, barem a posezením, která vytváří příjemné zázemí pro hosty a skupinové pobyty.
Technické informace
• centrální vytápění plynovým kotlem s rozvody do radiátorů ve všech pokojích
• krbová kamna ve společenské místnosti
• parkování zdarma přímo u penzionu

Lokalita s vysokou turistickou poptávkou
Rokytnice nad Jizerou patří mezi nejnavštěvovanější horská střediska v České republice a nabízí široké možnosti sportovního i rekreačního vyžití během celého roku.
V bezprostřední blízkosti penzionu se nachází:
• 250 m – obchody, restaurace, půjčovna lyží, pošta, zastávka skibusu
• 150 m – lyžařský areál s lyžařskou školou, nočním lyžováním a občerstvením
• 80 m – hotel s restaurací a možností využití wellness služeb (sauna, masáže, bowling, kulečník)

Investiční potenciál
Nemovitost je ideální pro investory hledající:
• zavedený horský penzion v Krkonoších
• stabilní výnos z cestovního ruchu
• nemovitost s možností dalšího rozvoje služeb
• bez investic do rekonstrukce
Díky své poloze, kapacitě a vybavení představuje penzion zajímavou investiční příležitost s potenciálem dlouhodobého zhodnocení.

V případě dalších dotazů mne kontaktujte.

Parametry nemovitosti

Cena
12 750 000 Kč /za nemovitost Spočítat hypotéku
Poznámka k ceně
Cena je včetně provize a právního servisu.
Aktualizováno
6. 3. 2026
Adresa
Rokytnice nad Jizerou, Dolní Rokytnice
ID
Chata Rokytnice
Stavba
Cihlová
Stav objektu
Po rekonstrukci
Užitná plocha
228 m2
Zastavěná plocha
189 m2
Plocha zahrady
318 m2
Třída energetické náročnosti
E - Nehospodárná
Ukazatel energetické náročnosti
185 kWh/m2 za rok
Elektřina
230V
Odpad
Veřejná kanalizace
Komunikace
Asfaltová
Voda
Vodovod
Topné těleso
Radiátory
Zdroj topení
Plynový kondenzační kotel, Krb
Zdroj teplé vody
Plynový kondenzační kotel
Parkování

Kontaktovat makléře

Realitní kancelář

ATOM REALITY

Politických vězňů 98, Kolín III

Chystáte se prodat nemovitost?
Pomůžeme Vám!

Máte zájem o tuto nemovistost?

Tímto, v souladu s nařízením Evropského parlamentu a Rady (EU) 2016/679, v platném znění, prohlašuji, že mi je alespoň 16 let a uděluji tak svůj souhlas se zpracováním zadaných údajů (jméno, telefon, e-mail, ip adresa) společnosti B3 Technology, s.r.o., IČ: 07330600, se sídlem Novostavby 126/23, 435 11 Lom (správce dat), za účelem předání dotazu z tohoto formuláře Vámi vybranému inzerentovi a zpětného kontaktování mé osoby. Osobní údaje bude správce zpracovávat manuálně i automaticky přímo prostřednictvím svých zaměstnanců. Informace předané tímto formulářem budou uloženy v databázi správce maximálně po dobu 10 let. Odvolání souhlasu s uložením a zpracováním poskytnutých dat lze e-mailem na info@videobydleni.cz. V případě podezření na neoprávněné použití Vámi poskytnutých údajů máte právo předat podnět k šetření Úřadu pro ochranu osobních údajů. Více informací
Chystáte se prodat nemovitost?
Pomůžeme Vám!

Inzerát si prohlédlo 1 lidí

Prodejce

Ing. Tomáš Chrastil

Ing. Tomáš Chrastil

Hlídací pes

Chcete dostávat emailem podobné nabídky prodeje ubytování v Rokytnici nad Jizerou?

Podobné nemovitosti


Nevyhovuje Vám typ nemovitosti? Podívejte se na jiné kategorie komerčních.


Vybrané články z našeho blogu