Prodej bytu 4+kk, Praha - Ruzyně, Drnovská, 96 m2

Drnovská, Praha, Ruzyně

15 320 000 Kč /za nemovitost HYPOTÉKA od 68 471 Kč /za měsíc

(Cena včetně provize RK, právních služeb, advokátní úschovy kupní ceny.)

Prémioví partneři v Praze 6

Stěhovací služby

Výkup a prodej starého nábytku

Pojištění a finance

Informace k bytu

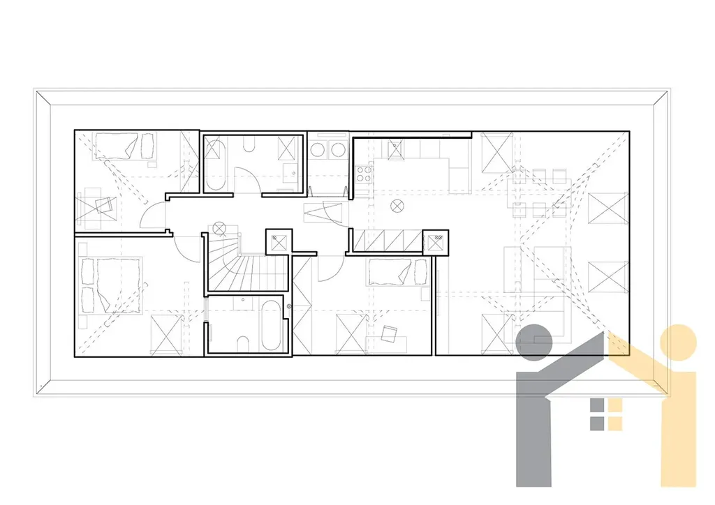
Tento byt 4+kk nadstandardní svou velikostí, netradičností a i vybavením na míru, je připraven změnit majitele. Byt je navržen architekty, přičemž byl dán důraz na kvalitní a designové materiály a prvky. Velkou výhodou tohoto bytu je veliká dotace přirozeného světla, výhled na všechny světové strany a multifunkčnost (ze střešních oken lze vytvořit střešní balkonová okna, tudíž za pěkného počasí je možné propojit interiér s exteriérem).
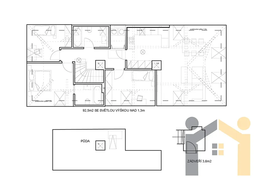
Byt má 120,3m2 podlahovou plochu. Užitná plocha je 96,1m2, přičemž v ní není započítána plocha půdy a ani plocha pod střešními okny. Reálně tedy budoucí majitelé získají mnohem více, než 120m2 plochy k užitku.

K bytu náleží venkovní parkovací stání (umístěné za bránou) na pozemku, který náleží k domu. Do budoucna bude možné v případě zájmu odkoupit i druhé parkovací stání v garáži, na které mají současní majitelé uzavřenou smlouvu o smlouvě budoucí kupní. Toto stání bude k dispozici ve vedlejší novostavbě bytového domu, jehož výstavba je naplánována na letošní rok.

Bytový dům o celkem 5 bytových jednotkách byl kompletně zrekonstruován v roce 2021, přičemž byt, který je předmětem prodeje, lze nazvat úplnou novostavbou (byl vybudován nově z půdních prostor).
Byt zahrnuje vnitřní schodiště, po kterém se ze zádveří ve 2.NP přemístíte do 3.NP, kde se rozprostírá celý obytný prostor, 3 neprůchozí pokoje a velký obývací pokoj spojený s kuchyní. Dále 2 koupelny s vanou, spojené se dvěma toaletami. Důležitá je i praktická komora, která slouží i jako prádelna. A samozřejmostí je i klimatizace ve všech 4 pokojích, takže se budoucí majitelé nemusejí obávat příliš velkého tepla v horkých letních dnech.
Pro vytápění slouží centrální plynová kotelna umístěná v technické místnosti v domě v 1.NP. V bytové jednotce není žádný kotel, ani bojler. Vše je napojeno dálkově.

Bytová jednotka 4+kk se nachází na rozhraní ulice Drnovská a Ztracená na Praze 6. Autobusovou zastávku má tento byt 2min. od domu, přičemž do 10 až 12min. dojedou budoucí majitelé bytu na stanici metra „A“ – Petřiny, Veleslavín, či Motol. Velkou výhodou je i blízkost dvou špičkových nemocnic – Motol a Ústřední vojenská nemocnice. Nedaleko od objektu je OC Šestka a v docházkové vzdálenosti, či jednu stanici autobusem, je i tramvaj a nákupní středisko Delta, kde je Billa, lékařská péče, lahůdkářství, školky, školy a velké množství venkovních hřišť. Pár minut chůze od domu je vlaková stanice Ruzyně, kde vznikne i rychlodráha. Na letiště je to co by „kamenem dohodil“, a pro běžné procházky je velmi lákavá Obora Hvězda, nebo atraktivní přírodní rezervace Divoká Šárka a koupaliště Džbán. A přímo za domem je dokonce horolezecká stěna. Vyžití v okolí bytu jak pro nárazovou činnost, či pro pravidelný relax, naprosto skvělé!

Nemovitost je v osobním vlastnictví a lze ji bez problému financovat hypotečním úvěrem. Cena nemovitosti včetně provize, právních služeb a úschovy kupní ceny: 15.320.000,- Kč. V případě více zájemců o koupi si majitelé nemovitosti vyhrazují právo učinit výběr kupujících dle svých priorit. PENB: „D“. Pro dotazy či domluvení prohlídky jsem kdykoli k dispozici. O tomto bytové domě a o bytové jednotce lze říci mnohé, ale nejlepší je osobní prohlídka, na které Vám velmi ráda sdělím veškeré podrobnosti a kompletně Vám nemovitost představím. Budu se těšit na osobní setkání.

Parametry bytu

Cena
15 320 000 Kč /za nemovitost Spočítat hypotéku
Poznámka k ceně
Cena včetně provize RK, právních služeb, advokátní úschovy kupní ceny.
Aktualizováno
5. 5. 2026
Adresa
Drnovská, Praha, Ruzyně
Stavba
Smíšená
Stav objektu
Po rekonstrukci
Patro
3.
Lokalita objektu
Klidná část obce
Vlastnictví
Osobní
Užitná plocha
96 m2
Podlahová plocha
120 m2
Třída energetické náročnosti
D - Méně úsporná
Elektřina
230V
Odpad
Veřejná kanalizace
Komunikace
Asfaltová
Telekomunikace
Telefon, Internet
Doprava
Vlak, Dálnice, Silnice, MHD, Autobus
Voda
Vodovod
Topné těleso
Radiátory, Klimatizace
Zdroj topení
Centrální dálkové
Zdroj teplé vody
Centrální dálkový ohřev
Balkon
Výtah
Bezbarierový přístup
Parkování

Kontaktovat makléře

Máte zájem o tento byt?

Tímto, v souladu s nařízením Evropského parlamentu a Rady (EU) 2016/679, v platném znění, prohlašuji, že mi je alespoň 16 let a uděluji tak svůj souhlas se zpracováním zadaných údajů (jméno, telefon, e-mail, ip adresa) společnosti B3 Technology, s.r.o., IČ: 07330600, se sídlem Novostavby 126/23, 435 11 Lom (správce dat), za účelem předání dotazu z tohoto formuláře Vámi vybranému inzerentovi a zpětného kontaktování mé osoby. Osobní údaje bude správce zpracovávat manuálně i automaticky přímo prostřednictvím svých zaměstnanců. Informace předané tímto formulářem budou uloženy v databázi správce maximálně po dobu 10 let. Odvolání souhlasu s uložením a zpracováním poskytnutých dat lze e-mailem na info@videobydleni.cz. V případě podezření na neoprávněné použití Vámi poskytnutých údajů máte právo předat podnět k šetření Úřadu pro ochranu osobních údajů. Více informací
Chystáte se prodat nemovitost?
Pomůžeme Vám!
Theleadway banner

Inzerát si prohlédlo 33 lidí

Prodejce

Ivana Ráčková

Ivana Ráčková

Hlídací pes

Chcete dostávat emailem podobné nabídky prodeje bytů 4+kk v Praze 6?

Podobné nemovitosti


Nevyhovuje Vám typ bytu? Podívejte se na jiné kategorie bytů.


Vybrané články z našeho blogu