Prodej bytu 2+1, Brno - Židenice, Stará osada, 64 m2

Stará osada, Brno-Židenice

6 900 000 Kč /za nemovitost HYPOTÉKA od 30 839 Kč /za měsíc

(včetně provize a právních služeb)

Prémioví partneři v Brně

Informace k bytu

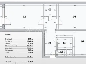
Exkluzivně nabízíme k prodeji panelový byt v osobním vlastnictví o velikosti 2+1 na ulici Stará osada, v Brně. Panelový byt se nachází ve 2. nadzemním podlaží s výtahem a jeho celková plocha činí 64 m2.

Byt disponuje opravdu velkorysým a vzdušným prostorem a samostatnými vstupy do pokojů:
• obývací pokoj - 16,61 m2
• ložnice - 18,44 m2
• kuchyně - 11,04 m2
• koupelna - 3,8 m2
• spíž/šatna - 2,79 m2
• předsíň 8,74 m2
• WC - 0,98 m2
• Sklepní kóje 1,45 m2

Byt je čerstvě po rekonstrukci. V celém bytě jsou nové omítky, sádrokartonové podhledy, vinylová podlaha, nové zásuvky. Zůstávají původní dveře a chybí kuchyňská linka, kterou si nový majitel může vybrat podle vlastních představ - což je určitě výhoda. Zděné bytové jádro a koupelna prošli rekonstrukcí před 12 lety. Koupelna s WC jsou v dobrém a udržovaném stavu. Lodžie (o velikosti 3,79 m2) je zasklená. V bytě jsou plastová okna s žaluziemi a v oknech jsou instalovány sítě proti hmyzu. Dům je po celkové revitalizaci a zateplený. Měsíční náklady na provoz bytu jsou cca 5 672 Kč), nesplácí se žádný úvěr. V domě se nachází dva výtahy , včetně nákladního výtahu, vhodného pro stěhování větších břemen. K využití jsou i společná kočárkárna s kolárnou.

Kromě velikosti bytu je nesporně jeho další předností výborná strategická poloha:
• hned před domem je nákupní centrum a obchod Albert
• z tramvajové smyčky se tramvají pohodlně dostanete za pár minut do centra města, nebo kamkoli jinam po Brně
• za domem je mateřská škola
• o kousek dál je Kaufland
• navazuje vlakové nádraží
• hned za tratí se nachází koupaliště Zábrdovice – jediné koupaliště s umělým vlnobitím v Brně
• před Albertem je tramvajová smyčka a zastávky autobusů
• přes ulici se dostanete do lesoparku Akátky
• za domem je souběžně s řekou Svitavou cyklostezka až do Bílovic
• autobus č.201 vás doveze dál do přírody, např. do Jedovnic

Byt je volný ihned. Majitel si vyhrazuje právo vybrat si kupujícího dle jeho kritérií.

Parametry bytu

Cena
6 900 000 Kč /za nemovitost Spočítat hypotéku
Poznámka k ceně
včetně provize a právních služeb
Aktualizováno
19. 3. 2026
Adresa
Stará osada, Brno-Židenice
ID
19170
Stavba
Panelová
Stav objektu
Velmi dobrý
Patro
2. z 14
Vybaveno
Ne
Lokalita objektu
Centrum obce
Vlastnictví
Osobní
Užitná plocha
64 m2
Podlahová plocha
64 m2
Třída energetické náročnosti
C - Úsporná
Ukazatel energetické náročnosti
78 kWh/m2 za rok
Elektřina
230V
Plyn
Plynovod
Odpad
Veřejná kanalizace
Komunikace
Asfaltová
Doprava
Vlak, MHD, Autobus
Lodžie
Výtah

Kontaktovat makléře

Realitní kancelář

Logo QARA, s.r.o.

QARA, s.r.o.

Šafaříkova 201/17, Praha

Chystáte se prodat nemovitost?
Pomůžeme Vám!

Máte zájem o tento byt?

Tímto, v souladu s nařízením Evropského parlamentu a Rady (EU) 2016/679, v platném znění, prohlašuji, že mi je alespoň 16 let a uděluji tak svůj souhlas se zpracováním zadaných údajů (jméno, telefon, e-mail, ip adresa) společnosti B3 Technology, s.r.o., IČ: 07330600, se sídlem Novostavby 126/23, 435 11 Lom (správce dat), za účelem předání dotazu z tohoto formuláře Vámi vybranému inzerentovi a zpětného kontaktování mé osoby. Osobní údaje bude správce zpracovávat manuálně i automaticky přímo prostřednictvím svých zaměstnanců. Informace předané tímto formulářem budou uloženy v databázi správce maximálně po dobu 10 let. Odvolání souhlasu s uložením a zpracováním poskytnutých dat lze e-mailem na info@videobydleni.cz. V případě podezření na neoprávněné použití Vámi poskytnutých údajů máte právo předat podnět k šetření Úřadu pro ochranu osobních údajů. Více informací
Chystáte se prodat nemovitost?
Pomůžeme Vám!

Inzerát si prohlédlo 0 lidí

Prodejce

Martin Žák

Martin Žák

Hlídací pes

Chcete dostávat emailem podobné nabídky prodeje bytů 2+1 v Brně?

Podobné nemovitosti


Nevyhovuje Vám typ bytu? Podívejte se na jiné kategorie bytů.


Vybrané články z našeho blogu