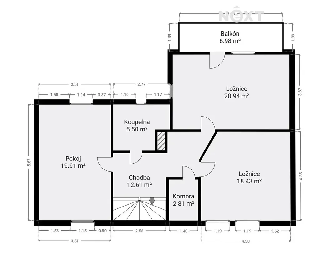
Prodej rodinného domu, Samopše, 166 m2

Samopše

9 980 000 Kč /za nemovitost HYPOTÉKA od 44 605 Kč /za měsíc
Prémioví partneři v Samopších

Informace k domu

Nabízíme k prodeji rodinný dům o dispozici 5+kk v obci Samopše přímo u řeky Sázavy, který kombinuje klid venkova s dostupností města.
Dům byl kolaudován v roce 2007, je zděné konstrukce a v roce 2015 prošel kompletním dokončením. Má dvě nadzemní podlaží a celkovou užitnou plochu 166 m². Nabízí více než dost prostoru i pro větší rodinu, případně pro všechny vaše plány, které zatím čekají na „jednou“.
Technikálie: zdivo Porotherm, dřevěná euro okna, omítka zateplená, krytina je taška pálená, kvalitní keramické dlažby a obklady, dveře z masivu, Wi‑Fi Vlašimnet, vytápění krbem a výměníkem a pro zmrzliny jsou v každém pokoji záložní elektrické přímotopy, odpad je sveden do jímky, voda je čerpána z vlastního 23 m vrtu.
Dominantou domu je světlý obývací pokoj propojený s kuchyní, která je vybavena moderními spotřebiči a nabízí dostatek úložného prostoru.
Dispozice 5+kk doplňují dvě koupelny a prakticky řešené úložné prostory, takže každá věc má své místo – a pokud ne, pořád je kam ji dát.
Dům stojí na obdélníkovém, ze tří stran oploceném pozemku o celkové výměře 567 m², z čehož pečlivě udržovaná okrasná zahrada tvoří 463 m². Ta nabízí dostatek prostoru pro relaxaci, dětské hry, zahradničení nebo jen pro nicnedělání, které je zde překvapivě návykové. Využít k tomu můžete rozlehlou terasu s výhledem na řeku. A pokud bude hlad, tak lze i něco ugrilovat v kamenném grilu.
Parkování je zajištěno pro dvě auta přímo na pozemku a dostanete se sem po šotolinové cestě s věcným břemenem přístupu.
Velkou předností je také samotná lokalita. Dům se nachází v klidné části obce v blízkosti řeky Sázavy, která nabízí široké možnosti pro volnočasové aktivity – od procházek přes cyklovýlety až po vodácké zážitky. V docházkové vzdálenosti (do cca 1,5 km) najdete bistro U Libora a vodácký kemp U Schiflera, případně si zajedete 10 min. vlakem do města Sázava, takže vaření může být klidně jen vaše hobby, ne povinnost.
Veškerou širší občanskou vybavenost pak nabízí nedaleká města Sázava a Uhlířské Janovice. Dopravní dostupnost je velmi dobrá, a to jak autem, tak vlakem či autobusem, s rozumným dojezdem do Prahy.
Tato nemovitost představuje ideální kombinaci prostoru, klidu a dostupnosti – ať už hledáte plnohodnotné rodinné bydlení, nebo místo, kam budete rádi utíkat z města.
Tak zavolejte a domluvíme prohlídku.
Pouze u nás vám zajistíme moderní financování až na 30 let, bez ohledu na věk a prokazování příjmů, či nutnosti předkládat daňové přiznání (u podnikatelů). Zeptejte se nás a bydlete chytře!
PENB zatím není k dispozici, proto uvádíme "G". Pro komunikaci uvádějte evidenční číslo zakázky N116858.

Parametry domu

Cena
9 980 000 Kč /za nemovitost Spočítat hypotéku
Aktualizováno
21. 3. 2026
Adresa
Samopše
ID
N116858
Stavba
Cihlová
Stav objektu
Velmi dobrý
Vybaveno
Ano
Druh objektu
Rohový
Lokalita objektu
Klidná část obce
Užitná plocha
166 m2
Zastavěná plocha
104 m2
Podlahová plocha
173 m2
Plocha pozemku
567 m2
Třída energetické náročnosti
G - Mimořádně nehospodárná
Elektřina
230V, 400V
Odpad
Jímka
Topení
Lokální elektrické, Ústřední tuhá paliva
Komunikace
Zpevněná
Doprava
Vlak, Silnice, Autobus
Voda
Studna
Topné těleso
Radiátory, Přímotop, Krbová kamna
Zdroj topení
Přímotop, Krbová kamna, Ústřední dálkové
Zdroj teplé vody
Bojler - elektro
Bezbarierový přístup
Parkování

Kontaktovat makléře

Máte zájem o tento dům?

Tímto, v souladu s nařízením Evropského parlamentu a Rady (EU) 2016/679, v platném znění, prohlašuji, že mi je alespoň 16 let a uděluji tak svůj souhlas se zpracováním zadaných údajů (jméno, telefon, e-mail, ip adresa) společnosti B3 Technology, s.r.o., IČ: 07330600, se sídlem Novostavby 126/23, 435 11 Lom (správce dat), za účelem předání dotazu z tohoto formuláře Vámi vybranému inzerentovi a zpětného kontaktování mé osoby. Osobní údaje bude správce zpracovávat manuálně i automaticky přímo prostřednictvím svých zaměstnanců. Informace předané tímto formulářem budou uloženy v databázi správce maximálně po dobu 10 let. Odvolání souhlasu s uložením a zpracováním poskytnutých dat lze e-mailem na info@videobydleni.cz. V případě podezření na neoprávněné použití Vámi poskytnutých údajů máte právo předat podnět k šetření Úřadu pro ochranu osobních údajů. Více informací
Chystáte se prodat nemovitost?
Pomůžeme Vám!

Inzerát si prohlédlo 2 lidí

Prodejce

Mgr. Olga Procházková

Mgr. Olga Procházková

Hlídací pes

Chcete dostávat emailem podobné nabídky prodeje rodinných domů v Samopších?

Top nabídky

Podobné nemovitosti


Nevyhovuje Vám typ domu? Podívejte se na jiné kategorie domů.


Vybrané články z našeho blogu