Prodej pozemku pro bydlení, Kostelec, 893 m2 (ID: 4214839)

Kostelec

2 150 000 Kč /za nemovitost HYPOTÉKA od 9 609 Kč /za měsíc

(Včetně projektu)

Prémioví partneři v Kostelci

Pojištění a finance

Informace k pozemku

Nabídka pozemku VČETNĚ PROJEKTU na výstavbu domu s garáží v Kostelci u Kyjova.
Nabízí se i PŘEVZETÍ HYPOTÉKY s nízkou úrokovou sazbou 2,19 %.
Rovinatý pozemek s orientací sever - jih se nachází na okraji obce, v nově budované zástavbě rodinných domů.
Obdélníkový tvar pozemku o šíři 11 m, délce 80 m a celkové ploše 893 m2 dostačuje pro stavbu domu, garáže a ještě zbyde pro zahradu.
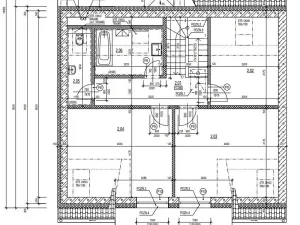
Dle územního plánu je pozemek vhodný pro stavbu přízemního domu s obytným podkrovím a tak je i dům navržen.
Dům bude s dispozicí 5+kk, užitná plocha domu 195 m2, užitná plocha garáže 34 m2.
Je navržena klasická zděná stavba z pórobetonových bloků Ytong, keramická střešní krytina, okna plastová trojkomorová.
Projektová dokumentace je k nahlédnutí a je zahrnuta v ceně.
Inženýrské sítě: přípojka elektřiny je na pozemku, vodovodní řád vede podél komunikace, odpad bude řešen domácí ČOV.
Přístupová cesta je v majetku obce a je částečně zpevněná.
Závazné informace a konzultace projektu poskytne hlavní architekt projektu, Odbor územního plánování a Stavební úřad v Kyjově.
Tento pozemek je ideální pro ty, kteří hledají klidné a příjemné bydlení.
Obec Kostelec je známá svým bohatým společenským životem a udržováním tradic.
Je zde obecní úřad, MŠ i 1.stupeň ZŠ, pošta a obchod se smíšeným zbožím.
Nedaleké pohoří Chřiby vybízí k pěším i cyklistickým výletům.
Vzdálenost do Kyjova, kde je rozšířená občanská vybavenost je pouhé 4km.
Zastihnete mě v kyjovské kanceláři Masarykovo náměstí 7 (v průchodu).
Prodávající si vyhrazuje právo vybrat kupujícího na základě jím zvolených kritérií.

Parametry pozemku

Cena
2 150 000 Kč /za nemovitost Spočítat hypotéku
Poznámka k ceně
Včetně projektu
Aktualizováno
8. 5. 2026
Adresa
Kostelec
ID
0163-NP04239
Lokalita objektu
Okraj obce
Plocha pozemku
893 m2
Komunikace
Zpevněná
Doprava
Silnice, Autobus

Kontaktovat makléře

Máte zájem o tento pozemek?

Tímto, v souladu s nařízením Evropského parlamentu a Rady (EU) 2016/679, v platném znění, prohlašuji, že mi je alespoň 16 let a uděluji tak svůj souhlas se zpracováním zadaných údajů (jméno, telefon, e-mail, ip adresa) společnosti B3 Technology, s.r.o., IČ: 07330600, se sídlem Novostavby 126/23, 435 11 Lom (správce dat), za účelem předání dotazu z tohoto formuláře Vámi vybranému inzerentovi a zpětného kontaktování mé osoby. Osobní údaje bude správce zpracovávat manuálně i automaticky přímo prostřednictvím svých zaměstnanců. Informace předané tímto formulářem budou uloženy v databázi správce maximálně po dobu 10 let. Odvolání souhlasu s uložením a zpracováním poskytnutých dat lze e-mailem na info@videobydleni.cz. V případě podezření na neoprávněné použití Vámi poskytnutých údajů máte právo předat podnět k šetření Úřadu pro ochranu osobních údajů. Více informací
Chystáte se prodat nemovitost?
Pomůžeme Vám!
Theleadway banner

Inzerát si prohlédlo 12 lidí

Prodejce

Mgr. Veronika Šimečková

Mgr. Veronika Šimečková

Hlídací pes

Chcete dostávat emailem podobné nabídky prodeje pozemků pro bydlení v Kostelci (okr. Hodonín)?

Podobné nemovitosti


Nevyhovuje Vám typ pozemku? Podívejte se na jiné kategorie pozemků.


Vybrané články z našeho blogu