Pronájem bytu 3+kk, Praha - Nové Město, Opletalova, 70 m2 (ID: 4223331)

Opletalova, Praha, Nové Město

34 000 Kč /za měsíc Získejte výhodnou HYPOTÉKU
Prémioví partneři v Praze 1

Stěhovací služby

Výkup a prodej starého nábytku

Informace k bytu

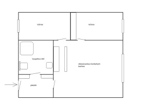
Nabízíme k pronájmu pěkný, prostorově velmi dobře řešený byt 3+kk, ve čtvrtém patře cihlového domu v Opletalově ulici, cca 2 minuty chůze od Václavského náměstí. Byt má dvě neprůchozí ložnice, jedna je orientovaná do klidného vnitrobloku, druhá do ulice, obývací pokoj se zánovní kuchyňskou linkou s oknem také do ulice. Okna jsou nová dřevěná špaletová. Podlahy jsou v pokojích dřevěné třívrstvé lamely, v předsíni a v koupelně je dlažba. Koupelna je se sprchovým koutem. Byt je zařízený kuchyňskou linkou se spotřebiči, lednicí a pračkou. V pokoji je velká vestavěná skříň, v předsíni jsou dvě menší vestavěné skříně. Byt bude nově vymalován. Poplatky jsou včetně topení a vody 5.000,- Kč pro dvě osoby. V případě zájmu je možné si pronajmout garážové stání v suterénu vedlejšího domu. Skvělá lokalita v centru Prahy. Volný od 1.5. 2026.

Parametry bytu

Cena
34 000 Kč /za měsíc
Náklady na bydlení
služby 5000 Kč/2osoby/měsíc, el. 1000 Kč/měsíc
Aktualizováno
31. 3. 2026
Adresa
Opletalova, Praha, Nové Město
Stavba
Cihlová
Stav objektu
Velmi dobrý
Patro
4.
Vlastnictví
Osobní
Užitná plocha
70 m2

Kontaktovat makléře

Realitní kancelář

PROFI-TEN

Vodičkova 682/20, Praha

Chystáte se prodat nemovitost?
Pomůžeme Vám!

Máte zájem o tento byt?

Tímto, v souladu s nařízením Evropského parlamentu a Rady (EU) 2016/679, v platném znění, prohlašuji, že mi je alespoň 16 let a uděluji tak svůj souhlas se zpracováním zadaných údajů (jméno, telefon, e-mail, ip adresa) společnosti B3 Technology, s.r.o., IČ: 07330600, se sídlem Novostavby 126/23, 435 11 Lom (správce dat), za účelem předání dotazu z tohoto formuláře Vámi vybranému inzerentovi a zpětného kontaktování mé osoby. Osobní údaje bude správce zpracovávat manuálně i automaticky přímo prostřednictvím svých zaměstnanců. Informace předané tímto formulářem budou uloženy v databázi správce maximálně po dobu 10 let. Odvolání souhlasu s uložením a zpracováním poskytnutých dat lze e-mailem na info@videobydleni.cz. V případě podezření na neoprávněné použití Vámi poskytnutých údajů máte právo předat podnět k šetření Úřadu pro ochranu osobních údajů. Více informací
Chystáte se prodat nemovitost?
Pomůžeme Vám!

Inzerát si prohlédlo 0 lidí

Prodejce

František Cakl

František Cakl

Hlídací pes

Chcete dostávat emailem podobné nabídky pronájmu bytů 3+kk v Praze 1?

Podobné nemovitosti


Nevyhovuje Vám typ bytu? Podívejte se na jiné kategorie bytů.


Vybrané články z našeho blogu