Pronájem skladu, Uherské Hradiště - Vésky, Zámostí, 482 m2

Zámostí, Uherské Hradiště, Vésky

53 000 Kč /za měsíc Získejte výhodnou HYPOTÉKU

(bez DPH, bez poplatků, + provize RK, včetně právního servisu)

Prémioví partneři v Uherském Hradišti

Informace k nemovitosti

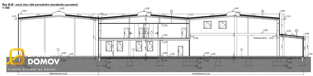
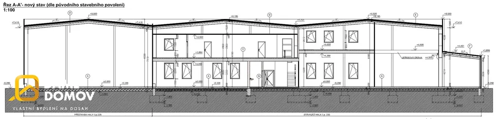
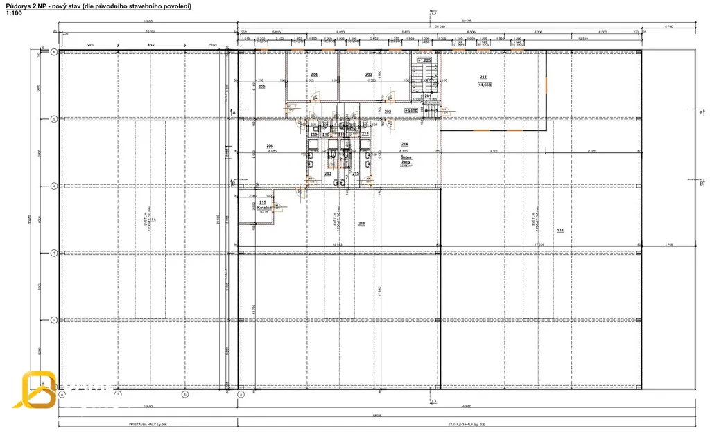
Nabízíme k pronájmu prostornou halu o výměře 482 m² v lokalitě Vésky, která je ideální pro skladování, logistiku i výrobu.

Hala disponuje výškou 8 metrů, což umožňuje maximální využití prostoru – ať už pro regálové systémy, manipulaci s materiálem nebo výrobní technologie.

Velkou výhodou jsou střešní světlíky, které zajišťují dostatek denního světla po celý den. Díky tomu nejen zlepšíte pracovní prostředí, ale zároveň snížíte náklady na energie.

Přímo v hale se nachází jeřáb, který výrazně usnadňuje manipulaci s těžkými břemeny a zvyšuje efektivitu provozu.

Součástí objektu je také administrativní zázemí v patře, kde najdete kanceláře, jídelnu i sociální zařízení – vše potřebné pro pohodlný chod firmy na jednom místě.

Hlavní výhody:

plocha haly 482 m²
výška 8 m
vhodné pro skladování, logistiku i výrobu
světlíky = úspora energií
jeřáb přímo v hale
kompletní administrativní zázemí
rezervovaný příkon 400A

Dostupné ihned

Pokud hledáte prostor, který vám poskytne dostatek kapacity nejen dnes, ale i do budoucna, neváhejte se ozvat. Rádi vám sdělíme více informací a domluvíme osobní prohlídku. RK Dáme Domov, makléř Roman Krist

Parametry nemovitosti

Cena
53 000 Kč /za měsíc
Poznámka k ceně
bez DPH, bez poplatků, + provize RK, včetně právního servisu
Aktualizováno
10. 4. 2026
Adresa
Zámostí, Uherské Hradiště, Vésky
ID
14444
Stavba
Montovaná
Stav objektu
Velmi dobrý
Typ objektu
Patrový
Užitná plocha
482 m2
Třída energetické náročnosti
G - Mimořádně nehospodárná
Elektřina
230V, 400V
Odpad
Veřejná kanalizace
Topení
Ústřední elektrické
Komunikace
Betonová, Asfaltová
Telekomunikace
Internet
Doprava
Silnice, Autobus
Voda
Místní zdroj vody
Parkování

Kontaktovat makléře

Máte zájem o tuto nemovistost?

Tímto, v souladu s nařízením Evropského parlamentu a Rady (EU) 2016/679, v platném znění, prohlašuji, že mi je alespoň 16 let a uděluji tak svůj souhlas se zpracováním zadaných údajů (jméno, telefon, e-mail, ip adresa) společnosti B3 Technology, s.r.o., IČ: 07330600, se sídlem Novostavby 126/23, 435 11 Lom (správce dat), za účelem předání dotazu z tohoto formuláře Vámi vybranému inzerentovi a zpětného kontaktování mé osoby. Osobní údaje bude správce zpracovávat manuálně i automaticky přímo prostřednictvím svých zaměstnanců. Informace předané tímto formulářem budou uloženy v databázi správce maximálně po dobu 10 let. Odvolání souhlasu s uložením a zpracováním poskytnutých dat lze e-mailem na info@videobydleni.cz. V případě podezření na neoprávněné použití Vámi poskytnutých údajů máte právo předat podnět k šetření Úřadu pro ochranu osobních údajů. Více informací
Chystáte se prodat nemovitost?
Pomůžeme Vám!

Inzerát si prohlédlo 0 lidí

Prodejce

Roman Krist

Roman Krist

Hlídací pes

Chcete dostávat emailem podobné nabídky pronájmu skladů v Uherském Hradišti?

Podobné nemovitosti


Nevyhovuje Vám typ nemovitosti? Podívejte se na jiné kategorie komerčních.


Vybrané články z našeho blogu