Pronájem obchodního prostoru, Karlovy Vary, T. G. Masaryka, 269 m2 (ID: 4235007)

T. G. Masaryka, Karlovy Vary

50 000 Kč /za měsíc Získejte výhodnou HYPOTÉKU
Prémioví partneři v Karlových Varech

Pojištění a finance

Informace k nemovitosti

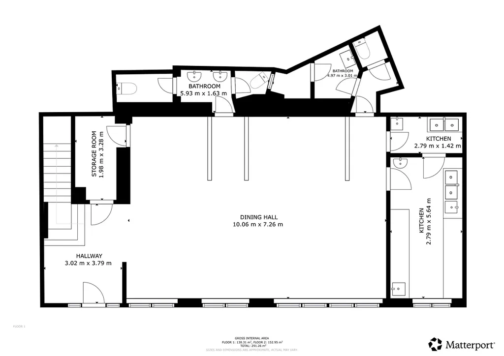
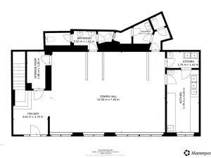
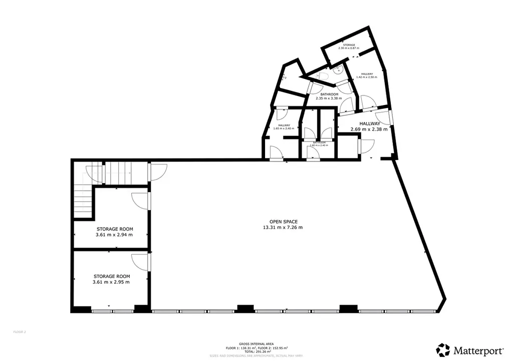
Pronájem bez provize RK. Nabízíme k pronájmu zajímavý dvoupatrový obchodní prostor v centru Karlových Varů. Jedná se o částečně zrekonstruovaný prostor o celkové ploše cca 269 m² (121 m² + 148 m²), rozdělený do dvou podlaží propojených interním schodištěm. Prostor se nachází v bezprostřední blízkosti hlavní ulice – třídy T. G. Masaryka, s velmi dobrou viditelností, dostupností a výhledem na​ Smetanovy sady- Alžbětiny lázně a přilehlý park.

Cena za obě podlaží je 50 000,- Kč měsíčně. V případě zájmu lze pronajmout pouze první nebo druhé podlaží. Cena za 1. podlaží 121 m² je 26 500,- Kč a cena za 2. podlaží 148 m² je 28 000,- Kč. Cena služeb za obě podlaží je 15 000,- Kč a v případě pronájmu pouze jednoho podlaží je 8 000,- Kč. Elektřinu si nájemce přepíše na sebe. Kauce je 2 měsíce nájemného včetně služeb.

Slevy na nájmu, období bez nájemného, budou posuzovány na základě výše investice nájemce, typu podnikání a délky trvání smlouvy.

Prostor nabízí všestranné využití a je vhodný například pro fitness, kavárnu či ordinace a mnoho dalšího. Přednost o pronájem budou mít již zavedené podniky. V případě zájmu o více informací či sjednání prohlídky, mě prosím kontaktujte.

Parametry nemovitosti

Cena
50 000 Kč /za měsíc
Náklady na bydlení
15000
Aktualizováno
30. 5. 2026
Adresa
T. G. Masaryka, Karlovy Vary
Stavba
Cihlová
Stav objektu
Dobrý
Vybaveno
Částečně
Lokalita objektu
Centrum obce
Užitná plocha
269 m2
Třída energetické náročnosti
E - Nehospodárná
Voda
Místní zdroj vody
Bezbarierový přístup

Kontaktovat makléře

Realitní kancelář

CZECH POINT 101 s.r.o.

T. G. Masaryka 623/12, Karlovy Vary

Chystáte se prodat nemovitost?
Pomůžeme Vám!

Máte zájem o tuto nemovistost?

Tímto, v souladu s nařízením Evropského parlamentu a Rady (EU) 2016/679, v platném znění, prohlašuji, že mi je alespoň 16 let a uděluji tak svůj souhlas se zpracováním zadaných údajů (jméno, telefon, e-mail, ip adresa) společnosti B3 Technology, s.r.o., IČ: 07330600, se sídlem Novostavby 126/23, 435 11 Lom (správce dat), za účelem předání dotazu z tohoto formuláře Vámi vybranému inzerentovi a zpětného kontaktování mé osoby. Osobní údaje bude správce zpracovávat manuálně i automaticky přímo prostřednictvím svých zaměstnanců. Informace předané tímto formulářem budou uloženy v databázi správce maximálně po dobu 10 let. Odvolání souhlasu s uložením a zpracováním poskytnutých dat lze e-mailem na info@videobydleni.cz. V případě podezření na neoprávněné použití Vámi poskytnutých údajů máte právo předat podnět k šetření Úřadu pro ochranu osobních údajů. Více informací
Chystáte se prodat nemovitost?
Pomůžeme Vám!
Theleadway banner

Inzerát si prohlédlo 3 lidí

Prodejce

Jiří Zoubek

Jiří Zoubek

Hlídací pes

Chcete dostávat emailem podobné nabídky pronájmu obchodních prostor v Karlových Varech?

Podobné nemovitosti


Nevyhovuje Vám typ nemovitosti? Podívejte se na jiné kategorie komerčních.


Vybrané články z našeho blogu