Prodej rodinného domu, Praha - Suchdol, Stržná, 233 m2 (ID: 4238193)

Stržná, Praha 6, Suchdol

16 500 000 Kč /za nemovitost HYPOTÉKA od 73 745 Kč /za měsíc

(Včetně realitního i právního servisu)

Prémioví partneři v Praze 6

Stěhovací služby

Výkup a prodej starého nábytku

Pojištění a finance

Informace k domu

Nabízíme k prodeji rodinný dům o velkorysé užitné ploše 233 m2, v žádané a klidné lokalitě Praha 6, Suchdol. Dům se nachází ulici Stžná, v těsné blízkosti veškeré občanské vybavenosti.

Dům je postaven na vlastním pozemku o výměře 401 m2, je kompletně oplocen. Je napojen na veškeré inženýrské sítě ( plyn, elektřina, obecní vodovod a veřejná kanalizace). Na pozemku dále naleznete garáž s výjezdem přímo na ulici.

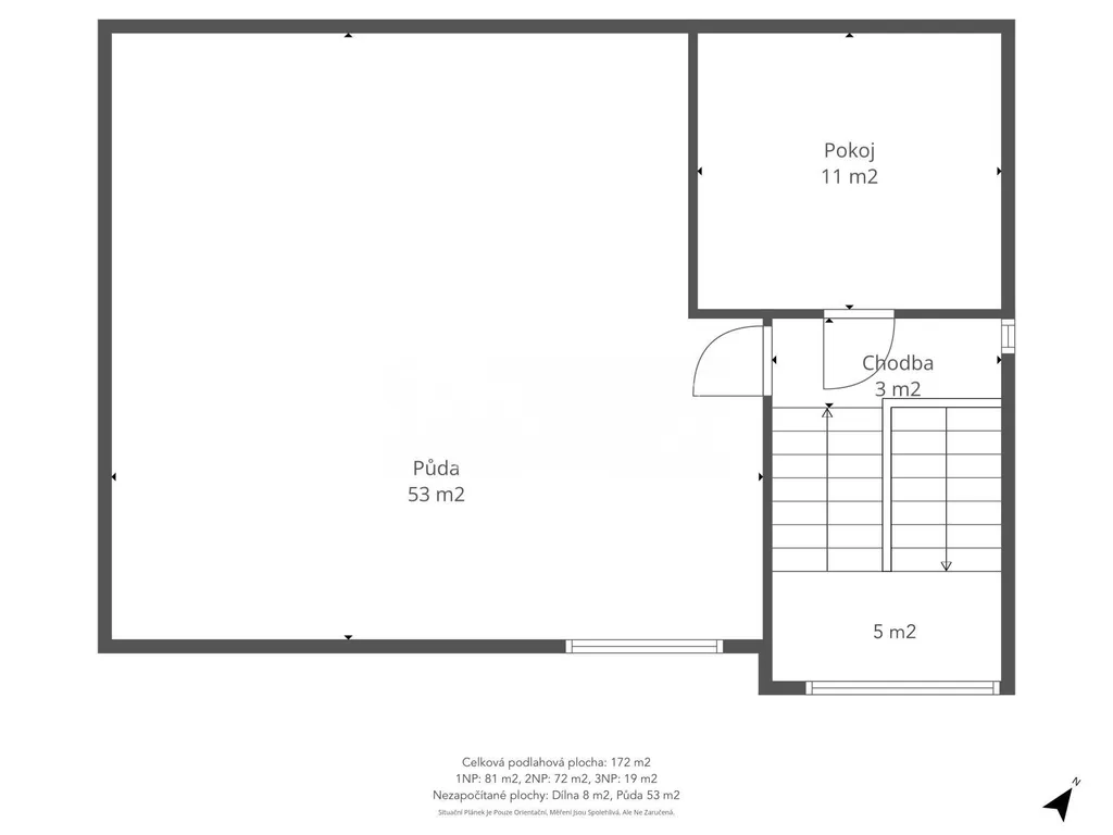
Nemovitost je celkově dobrém udržovaném stavu. Přesto je nutná kompletní rekonstrukce celého domu. V poslední patře se nachází prostorná půda a bylo v plánu dostavba posledního patra. K tomuto záměru existuje kompletní stavební dokumentace.

V blízkosti domu a v pěším dosahu se nachází mateřská škola, základní škola, obchody s potravinami, zdravotnické zařízení, lékárna, restaurace, plavecký bazén, komunitní zahrada a sportovní zařízení.
Výborné dopravní spojení do centra Prahy zajišťují různé autobusové linky s konečnou u stanice metra trasy A - Dejvická, V budoucnu se plánuje propojení Suchdola tramvajovou tratí.

Nemovitost není zatížena žádným omezením vlastnického práva, je možné ji financovat hypotečním úvěrem, který který vám rádi a zdarma pomůžeme zařídit.

Tato nemovitost představuje velmi dobrý investiční záměr jak pro investory, tak i pro příjemné bydlení rodiny s dětmi..

Velmi rád vás touto nemovitostí osobně provedu na prohlídce. Neváhejte mne kontaktovat.

Parametry domu

Cena
16 500 000 Kč /za nemovitost Spočítat hypotéku
Poznámka k ceně
Včetně realitního i právního servisu
Aktualizováno
4. 5. 2026
Adresa
Stržná, Praha 6, Suchdol
ID
20013
Stavba
Cihlová
Stav objektu
Dobrý
Vybaveno
Ano
Typ objektu
Patrový
Druh objektu
Řadový
Užitná plocha
233 m2
Zastavěná plocha
99 m2
Podlahová plocha
233 m2
Plocha pozemku
401 m2
Plocha zahrady
302 m2
Třída energetické náročnosti
E - Nehospodárná
Elektřina
230V, 400V
Plyn
Plynovod
Odpad
Veřejná kanalizace
Topení
Lokální plynové
Komunikace
Asfaltová
Telekomunikace
Telefon, Internet
Doprava
Silnice, MHD, Autobus
Topné těleso
Radiátory
Zdroj topení
Plynový kotel
Garáž
Bezbarierový přístup

Kontaktovat makléře

Realitní kancelář

Logo QARA, s.r.o.

QARA, s.r.o.

Šafaříkova 201/17, Praha

Chystáte se prodat nemovitost?
Pomůžeme Vám!

Máte zájem o tento dům?

Tímto, v souladu s nařízením Evropského parlamentu a Rady (EU) 2016/679, v platném znění, prohlašuji, že mi je alespoň 16 let a uděluji tak svůj souhlas se zpracováním zadaných údajů (jméno, telefon, e-mail, ip adresa) společnosti B3 Technology, s.r.o., IČ: 07330600, se sídlem Novostavby 126/23, 435 11 Lom (správce dat), za účelem předání dotazu z tohoto formuláře Vámi vybranému inzerentovi a zpětného kontaktování mé osoby. Osobní údaje bude správce zpracovávat manuálně i automaticky přímo prostřednictvím svých zaměstnanců. Informace předané tímto formulářem budou uloženy v databázi správce maximálně po dobu 10 let. Odvolání souhlasu s uložením a zpracováním poskytnutých dat lze e-mailem na info@videobydleni.cz. V případě podezření na neoprávněné použití Vámi poskytnutých údajů máte právo předat podnět k šetření Úřadu pro ochranu osobních údajů. Více informací
Chystáte se prodat nemovitost?
Pomůžeme Vám!
Theleadway banner

Inzerát si prohlédlo 12 lidí

Prodejce

Jan Bečvář

Jan Bečvář

Hlídací pes

Chcete dostávat emailem podobné nabídky prodeje rodinných domů v Praze 6?

Podobné nemovitosti


Nevyhovuje Vám typ domu? Podívejte se na jiné kategorie domů.


Vybrané články z našeho blogu