Prodej pozemku pro bydlení, Kratonohy, 1600 m2 (ID: 4239242)

Kratonohy

3 700 000 Kč /za nemovitost HYPOTÉKA od 16 537 Kč /za měsíc

(včetně provize RK a právního servisu)

Prémioví partneři v Kratonohách

Informace k pozemku

Prodej pozemku k bydlení, 1600 m², Kratonohy

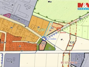
Nabízíme k prodeji stavební pozemek k bydlení o celkové ploše 1600 m2 v klidném místě v Kratonohách nedaleko Hradce Králové. Pozemek má dvě příjezdové komunikace. V současné době má pozemek vlastní přípojku elektřiny. Voda a kanalizace je vzdálená od pozemku cca 100 metrů. Možnost vlastní čističky odpadních vod a vrtané studny. Více informací u makléře.

Parametry pozemku

Cena
3 700 000 Kč /za nemovitost Spočítat hypotéku
Poznámka k ceně
včetně provize RK a právního servisu
Aktualizováno
14. 4. 2026
Adresa
Kratonohy
ID
939182
Stav objektu
Velmi dobrý
Vybaveno
Ne
Lokalita objektu
Klidná část obce
Vlastnictví
Osobní
Plocha pozemku
1600 m2

Kontaktovat makléře

Realitní kancelář

Logo M&M reality

M&M reality

ulice Krakovská 583/9, Praha

Chystáte se prodat nemovitost?
Pomůžeme Vám!

Máte zájem o tento pozemek?

Tímto, v souladu s nařízením Evropského parlamentu a Rady (EU) 2016/679, v platném znění, prohlašuji, že mi je alespoň 16 let a uděluji tak svůj souhlas se zpracováním zadaných údajů (jméno, telefon, e-mail, ip adresa) společnosti B3 Technology, s.r.o., IČ: 07330600, se sídlem Novostavby 126/23, 435 11 Lom (správce dat), za účelem předání dotazu z tohoto formuláře Vámi vybranému inzerentovi a zpětného kontaktování mé osoby. Osobní údaje bude správce zpracovávat manuálně i automaticky přímo prostřednictvím svých zaměstnanců. Informace předané tímto formulářem budou uloženy v databázi správce maximálně po dobu 10 let. Odvolání souhlasu s uložením a zpracováním poskytnutých dat lze e-mailem na info@videobydleni.cz. V případě podezření na neoprávněné použití Vámi poskytnutých údajů máte právo předat podnět k šetření Úřadu pro ochranu osobních údajů. Více informací
Chystáte se prodat nemovitost?
Pomůžeme Vám!

Inzerát si prohlédlo 1 lidí

Prodejce

Tomáš Trojan

Tomáš Trojan

Hlídací pes

Chcete dostávat emailem podobné nabídky prodeje pozemků pro bydlení v Kratonohách?

Podobné nemovitosti


Nevyhovuje Vám typ pozemku? Podívejte se na jiné kategorie pozemků.


Vybrané články z našeho blogu