Prodej pozemku pro bydlení, Praha - Vinohrady, Blanická, 430 m2 (ID: 4241686)

Blanická, Praha, Vinohrady

14 890 000 Kč /za nemovitost HYPOTÉKA od 66 549 Kč /za měsíc
Prémioví partneři v Praze 2

Stěhovací služby

Výkup a prodej starého nábytku

Informace k pozemku

Prodej stavebního pozemku 430 m² – Praha 2, Vinohrady
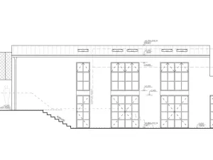
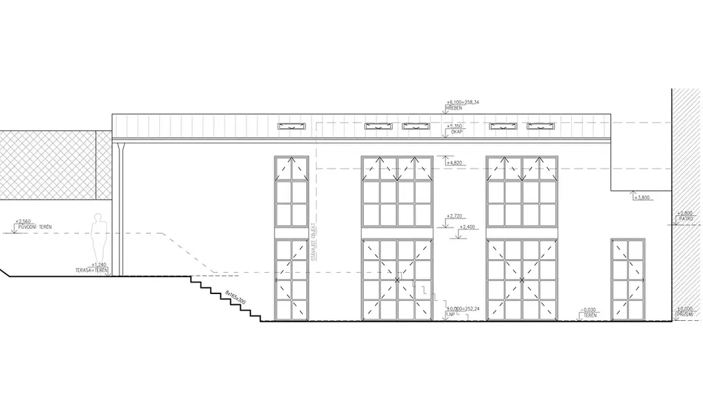
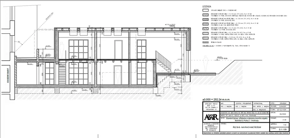
Se stavebním povolením na bytový dům o dvou jednotkách v místě původního ateliéru, viz.fotografie.
Nabízíme k prodeji výjimečný stavební pozemek o výměře 430 m² v jedné z nejžádanějších lokalit Prahy – na Vinohradech (Praha 2).

Součástí prodeje je pravomocné stavební povolení vydané 20. února 2026 na výstavbu bytového domu o dvou samostatných bytových jednotkách.

Projekt nabízí mimořádně flexibilní využití:
- realizace dvou samostatných bytových jednotek,
- spojení jednotek do jednoho velkorysého rodinného bydlení,
-investiční výstavba k následnému prodeji nebo pronájmu.

Klíčové informace:
- výměra pozemku: 430 m²
- platné stavební povolení
- projekt bytového domu se dvěma jednotkami
- zajištěný smluvní vztah o výstavbě s vlastníkem domu, přes který
je pozemek přístupný
- zřízené věcné břemeno průchodu a výstavby přes bytový dům
v Blanické ulici
- prodej přímým majitelem

Projekt je připraven k realizaci bez nutnosti dalších administrativních kroků.

Lokalita:
Praha 2 – Vinohrady patří dlouhodobě mezi nejprestižnější a cenově nejstabilnější lokality v hlavním městě. Nabízí výbornou občanskou vybavenost, dostupnost centra i vysoký investiční potenciál.

Tato nabídka představuje:
- atraktivní příležitost pro developery,
- zajímavý investiční projekt, nebo možnost vytvořit si nadstandardní bydlení v jedné z nejlepších adres v Praze.

V případě zájmu o bližší informace nebo podklady k projektu nás neváhejte kontaktovat. Mixovi

Parametry pozemku

Cena
14 890 000 Kč /za nemovitost Spočítat hypotéku
Aktualizováno
17. 4. 2026
Adresa
Blanická, Praha, Vinohrady
Lokalita objektu
Klidná část obce
Plocha pozemku
430 m2
Elektřina
230V
Plyn
Plynovod
Odpad
Veřejná kanalizace
Komunikace
Asfaltová
Telekomunikace
Telefon, Internet, Satelit, Kabelová televize, Kabelové rozvody, Ostatní
Doprava
MHD
Voda
Vodovod
Zdroj topení
Elektrokotel
Zdroj teplé vody
Elektrokotel

Kontaktovat makléře

Máte zájem o tento pozemek?

Tímto, v souladu s nařízením Evropského parlamentu a Rady (EU) 2016/679, v platném znění, prohlašuji, že mi je alespoň 16 let a uděluji tak svůj souhlas se zpracováním zadaných údajů (jméno, telefon, e-mail, ip adresa) společnosti B3 Technology, s.r.o., IČ: 07330600, se sídlem Novostavby 126/23, 435 11 Lom (správce dat), za účelem předání dotazu z tohoto formuláře Vámi vybranému inzerentovi a zpětného kontaktování mé osoby. Osobní údaje bude správce zpracovávat manuálně i automaticky přímo prostřednictvím svých zaměstnanců. Informace předané tímto formulářem budou uloženy v databázi správce maximálně po dobu 10 let. Odvolání souhlasu s uložením a zpracováním poskytnutých dat lze e-mailem na info@videobydleni.cz. V případě podezření na neoprávněné použití Vámi poskytnutých údajů máte právo předat podnět k šetření Úřadu pro ochranu osobních údajů. Více informací
Chystáte se prodat nemovitost?
Pomůžeme Vám!

Inzerát si prohlédlo 2 lidí

Prodejce

Ing. Lenka Mixová

Ing. Lenka Mixová

Hlídací pes

Chcete dostávat emailem podobné nabídky prodeje pozemků pro bydlení v Praze 2?


Nevyhovuje Vám typ pozemku? Podívejte se na jiné kategorie pozemků.


Vybrané články z našeho blogu