Pronájem kanceláře, Plzeň, Hálkova, 104 m2

Hálkova, Plzeň 3

40 000 Kč /za měsíc Získejte výhodnou HYPOTÉKU

(služby, elektřina a plyn 9.500,-, vratná kauce, poplatek RK)

Prémioví partneři v Plzni

Stěhovací služby

Informace k nemovitosti

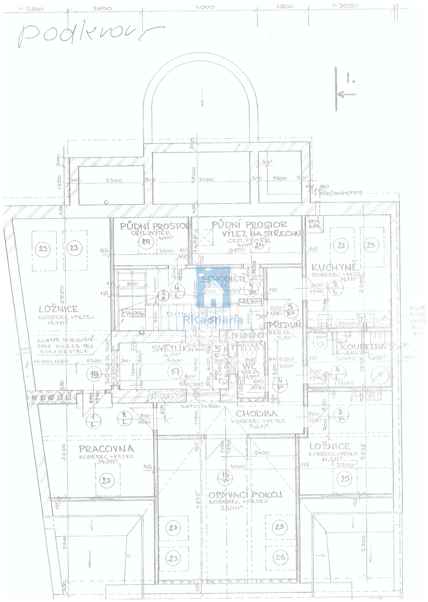
Nabízíme pronájem celého patra v administrativní budově, Plzeň - Jižní Předměstí, ulice Hálkova.
Prostor lze využít jako kanceláře, ale i jako byt s dispozicí 4+1.
Celá budova o velikosti 733 m2 má sestává z 5 pater, každé patro má vlastí přístup ze schodiště nebo výtahem. Na každém uzavřeném patře je vlastní kuchyňka a toalety panské, dámské. Na každém patře se nachází 5 kanceláří.
V budově se nachází recepce.
Možnost využití dvorku ve vnitro-bloku k příjemnému posezení.
Výměry prostor v jednotlivých patrech:
- suterén 21 m2
- přízemí 59,7 m2 a 38 m2
- 1. patro 125,7 m2
- 2. patro 125,7 m2
- 3. patro 125,2 m2
- 4. patro 133,4 m2 OBSAZENO
- 5. patro 104,3 m2
Bližší informace vám poskytneme v naší RK.

Parametry nemovitosti

Cena
40 000 Kč /za měsíc
Poznámka k ceně
služby, elektřina a plyn 9.500,-, vratná kauce, poplatek RK
Aktualizováno
16. 4. 2026
Adresa
Hálkova, Plzeň 3
ID
2914
Stavba
Cihlová
Stav objektu
Po rekonstrukci
Patro
5. z 5
Vybaveno
Ne
Typ objektu
Patrový
Lokalita objektu
Centrum obce
Užitná plocha
104 m2
Třída energetické náročnosti
G - Mimořádně nehospodárná
Převod do OV

Kontaktovat makléře

Máte zájem o tuto nemovistost?

Tímto, v souladu s nařízením Evropského parlamentu a Rady (EU) 2016/679, v platném znění, prohlašuji, že mi je alespoň 16 let a uděluji tak svůj souhlas se zpracováním zadaných údajů (jméno, telefon, e-mail, ip adresa) společnosti B3 Technology, s.r.o., IČ: 07330600, se sídlem Novostavby 126/23, 435 11 Lom (správce dat), za účelem předání dotazu z tohoto formuláře Vámi vybranému inzerentovi a zpětného kontaktování mé osoby. Osobní údaje bude správce zpracovávat manuálně i automaticky přímo prostřednictvím svých zaměstnanců. Informace předané tímto formulářem budou uloženy v databázi správce maximálně po dobu 10 let. Odvolání souhlasu s uložením a zpracováním poskytnutých dat lze e-mailem na info@videobydleni.cz. V případě podezření na neoprávněné použití Vámi poskytnutých údajů máte právo předat podnět k šetření Úřadu pro ochranu osobních údajů. Více informací
Chystáte se prodat nemovitost?
Pomůžeme Vám!

Inzerát si prohlédlo 1 lidí

Prodejce

Monika Černíková

Monika Černíková

Hlídací pes

Chcete dostávat emailem podobné nabídky pronájmu kanceláří v Plzni?

Top nabídky

Podobné nemovitosti


Nevyhovuje Vám typ nemovitosti? Podívejte se na jiné kategorie komerčních.


Vybrané články z našeho blogu