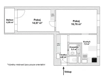
Vaše cesta k vysněnému bydlení je zase o něco kratší. Teď už stačí si jen vybrat jeden z prodejů bytů 2+1 v okrese Hodonín.

Vinohradská, Strážnice