Prodej bytu 1+kk, Praha - Nové Město, Opletalova, 27 m2 (ID: 4079934)

Opletalova, Praha, Nové Město

8 499 000 Kč /za nemovitost HYPOTÉKA od 37 985 Kč /za měsíc

(Nabídka slevy ve výši 100 000 Kč je platná do 10. 5. 2026.)

Prémioví partneři v Praze 1

Stěhovací služby

Výkup a prodej starého nábytku

Pojištění a finance

Informace k bytu

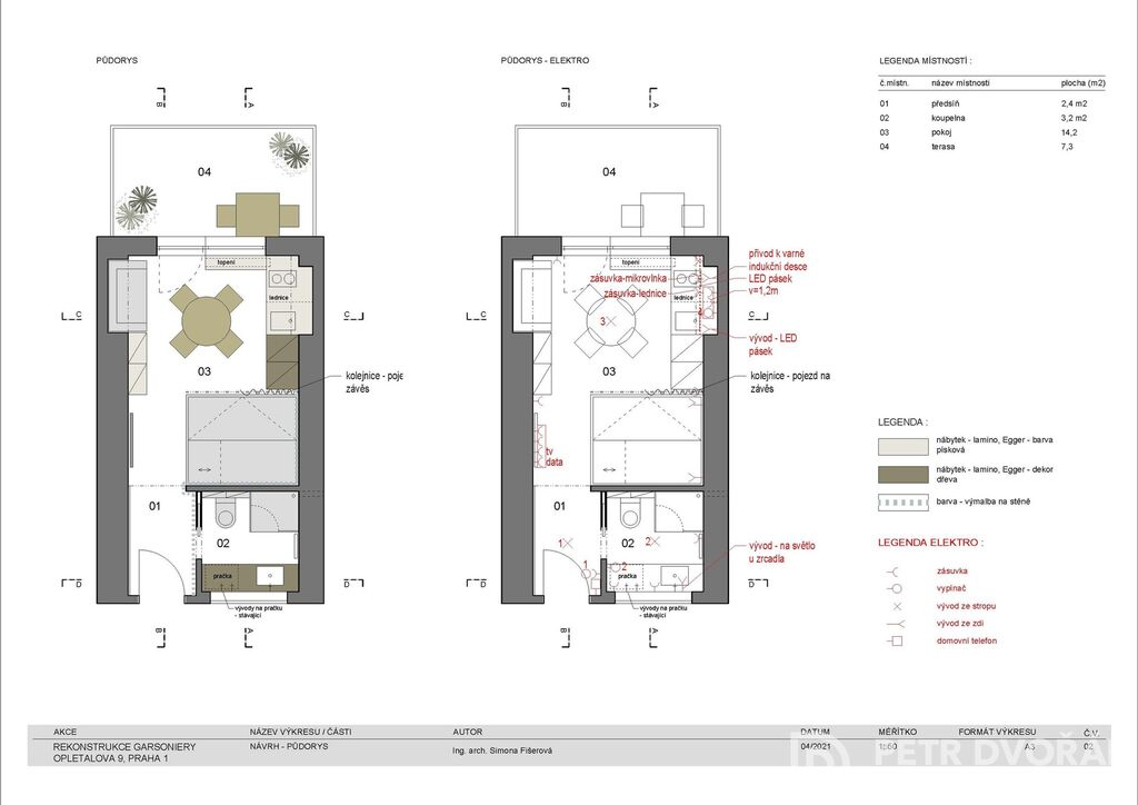
Nabídka moderního, nově zrekonstruovaného bytu 1+kk s klimatizací a terasou orientovanou do klidného vnitrobloku. Jednotka o ploše 27 m² se nachází ve funkcionalistickém činžovním domě v Opletalově ulici, který v letech 1936–1939 navrhl architekt Ferdinand Fencl. Budova disponuje dvěma výtahy a reprezentativními společnými prostory.
Interiér tvoří vstupní předsíň, koupelna s walk-in sprchovým koutem a toaletou a obytný prostor s kuchyní, jídelním koutem a odpočinkovou zónou s manželskou postelí oddělenou závěsem. Z pokoje je přímý vstup na prostornou terasu s výhledem na střechy Prahy.
Byt prošel kompletní rekonstrukcí, která klade důraz na funkčnost a estetiku. Podlahy jsou pokryty velkoformátovou dlažbou, okna jsou dřevěná s dvojskly. Kuchyňská linka je vybavena vestavnými spotřebiči, nechybí dostatek úložných prostor včetně niky s pračkou a sušičkou. Komfort zajišťuje klimatizace a ústřední vytápění z domovního plynového kotle.
Dům stojí v jednosměrné ulici v těsné blízkosti Václavského náměstí a stanice metra Muzeum. Lokalita nabízí kompletní občanskou vybavenost, množství kaváren, restaurací, obchodů i kulturních institucí. Staroměstské náměstí a Pařížská ulice jsou v docházkové vzdálenosti.
Nabídka slevy ve výši 100 000 Kč je platná do 10. 5. 2026.

Parametry bytu

Cena
8 499 000 Kč /za nemovitost Spočítat hypotéku
Poznámka k ceně
Nabídka slevy ve výši 100 000 Kč je platná do 10. 5. 2026.
Aktualizováno
30. 4. 2026
Adresa
Opletalova, Praha, Nové Město
ID
00858
Stavba
Cihlová
Stav objektu
Velmi dobrý
Patro
7.
Vybaveno
Ano
Vlastnictví
Osobní
Užitná plocha
27 m2
Třída energetické náročnosti
F - Velmi nehospodárná
Ukazatel energetické náročnosti
395 kWh/m2 za rok
Elektřina
230V
Telekomunikace
Internet, Satelit, Kabelová televize
Doprava
Vlak, MHD, Autobus
Voda
Vodovod
Terasa
Výtah

Kontaktovat makléře

Máte zájem o tento byt?

Tímto, v souladu s nařízením Evropského parlamentu a Rady (EU) 2016/679, v platném znění, prohlašuji, že mi je alespoň 16 let a uděluji tak svůj souhlas se zpracováním zadaných údajů (jméno, telefon, e-mail, ip adresa) společnosti B3 Technology, s.r.o., IČ: 07330600, se sídlem Novostavby 126/23, 435 11 Lom (správce dat), za účelem předání dotazu z tohoto formuláře Vámi vybranému inzerentovi a zpětného kontaktování mé osoby. Osobní údaje bude správce zpracovávat manuálně i automaticky přímo prostřednictvím svých zaměstnanců. Informace předané tímto formulářem budou uloženy v databázi správce maximálně po dobu 10 let. Odvolání souhlasu s uložením a zpracováním poskytnutých dat lze e-mailem na info@videobydleni.cz. V případě podezření na neoprávněné použití Vámi poskytnutých údajů máte právo předat podnět k šetření Úřadu pro ochranu osobních údajů. Více informací
Chystáte se prodat nemovitost?
Pomůžeme Vám!
Theleadway banner

Inzerát si prohlédlo 93 lidí

Prodejce

Petr Dvořák

Petr Dvořák

Hlídací pes

Chcete dostávat emailem podobné nabídky prodeje bytů 1+kk v Praze 1?

Podobné nemovitosti


Nevyhovuje Vám typ bytu? Podívejte se na jiné kategorie bytů.


Vybrané články z našeho blogu