Prodej rodinného domu, Chomutov, Březový vrch, 124 m2 (ID: 4223705)

Březový vrch, Chomutov

14 900 000 Kč /za nemovitost HYPOTÉKA od 66 594 Kč /za měsíc

(cena včetně právnického servisu)

Prémioví partneři v Chomutově

Okna a dveře

Pojištění a finance

Informace k domu

Prodej novostavby 4+KK, 169m2, pozemek 1030m2, ulice Březový Vrch v Chomutově.
Nabízíme Vám k prodeji nízkoenergetickou novostavbu bungalov samostatně stojící v ulici Březový Vrch, Chomutov .

Interiér dokončen v tomto roce 2026.

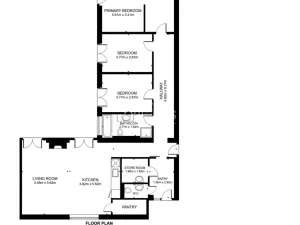
Dům o velikosti 4+KK ( zastavěná plocha činí 169 m2 ) , (užitná plocha činí 124,40m2), stojící na vlastním pozemku o celkové rozloze 1030 m2.
Tento bungalov je komfortní nízkoenergetická stavba z nadstandartních moderních materiálů. Nemovitost Vás zaujme nejdříve moderním a úsporným provedením a dále také členěním prostoru. Dispozice domu je úsporně řešena s minimem komunikačních ploch a tedy s maximálním využitím užitného objemu stavby.

Dispozice domu: kuchyň + obývací pokoj 38,2m2, 2x pokoj ( 10,87m2), ložnice 17,31m2, koupelna ( 6,45m2), chodba (12,15m2), chodba ( 5,23m2), technická místnost ( 3,44m2), WC (1,94m2), zádveří ( 5,69m2), závětří (3,15m2), krytá terasa ( 9,09m2).

Vybavení domu: elektrický kotel, podlahové vytápění. plastová okna s alu klipem a trojskla, příprava na venkovní žaluzie s elektrickým ovládáním, malby, příčky, podlahy. elektroinstalace, kuchyňská linka včetně spotřebičů.

Venkovní vybavení: plot, venkovní porost

Technické a stavební materiály, které byly použity k výstavbě domu: cihla Porotherm 440mm, zateplení domu 10cm + fasáda, Stropy Pamel Spiroll 20 cm, zastřešení domu plochá střecha se sklonem 2, zateplení domu 60mm polystyren, okna antracitová šedá- trojskla.
Inženýrské sítě: kanalizace, voda z řadu, elektřina, dešťová voda je svedena tzv. vsaku.

Velice doporučuji zájemcům se zájmem o koupi nemovitosti, kteří hledají moderní bydlení.
Zajistíme nejvýhodnější hypotéku.
Neváhejte nás kontaktovat pro nezávazné prohlídky, informace.

Parametry domu

Cena
14 900 000 Kč /za nemovitost Spočítat hypotéku
Poznámka k ceně
cena včetně právnického servisu
Aktualizováno
31. 3. 2026
Adresa
Březový vrch, Chomutov
ID
6299
Stavba
Cihlová
Stav objektu
Novostavba
Typ objektu
Přízemní
Druh objektu
Samostatný
Užitná plocha
124 m2
Zastavěná plocha
169 m2
Podlahová plocha
124 m2
Plocha pozemku
1030 m2
Plocha zahrady
861 m2
Třída energetické náročnosti
B - Velmi úsporná
Elektřina
400V
Odpad
Veřejná kanalizace
Komunikace
Asfaltová
Telekomunikace
Internet
Doprava
MHD
Voda
Vodovod
Terasa
Bezbarierový přístup
Parkování
Nízkoenergetický

Kontaktovat makléře

Realitní kancelář

Logo ORIONIS s.r.o.

ORIONIS s.r.o.

Čelakovského 3369/2, Chomutov

Chystáte se prodat nemovitost?
Pomůžeme Vám!

Máte zájem o tento dům?

Tímto, v souladu s nařízením Evropského parlamentu a Rady (EU) 2016/679, v platném znění, prohlašuji, že mi je alespoň 16 let a uděluji tak svůj souhlas se zpracováním zadaných údajů (jméno, telefon, e-mail, ip adresa) společnosti B3 Technology, s.r.o., IČ: 07330600, se sídlem Novostavby 126/23, 435 11 Lom (správce dat), za účelem předání dotazu z tohoto formuláře Vámi vybranému inzerentovi a zpětného kontaktování mé osoby. Osobní údaje bude správce zpracovávat manuálně i automaticky přímo prostřednictvím svých zaměstnanců. Informace předané tímto formulářem budou uloženy v databázi správce maximálně po dobu 10 let. Odvolání souhlasu s uložením a zpracováním poskytnutých dat lze e-mailem na info@videobydleni.cz. V případě podezření na neoprávněné použití Vámi poskytnutých údajů máte právo předat podnět k šetření Úřadu pro ochranu osobních údajů. Více informací
Chystáte se prodat nemovitost?
Pomůžeme Vám!
Theleadway banner

Inzerát si prohlédlo 6 lidí

Prodejce

Alena  Škrdle

Alena Škrdle

Hlídací pes

Chcete dostávat emailem podobné nabídky prodeje rodinných domů v Chomutově?

Podobné nemovitosti


Nevyhovuje Vám typ domu? Podívejte se na jiné kategorie domů.


Vybrané články z našeho blogu