Prodej bytu 4+1, Ústí nad Orlicí, Jilemnického, 81 m2

Jilemnického, Ústí nad Orlicí

4 160 000 Kč /za nemovitost HYPOTÉKA od 18 593 Kč /za měsíc
Prémioví partneři v Ústí nad Orlicí

Informace k bytu

Pokud jste hledali byt, kde bude mít každý člen domácnosti svůj vlastní prostor, klid a soukromí, tak jste na správné adrese.
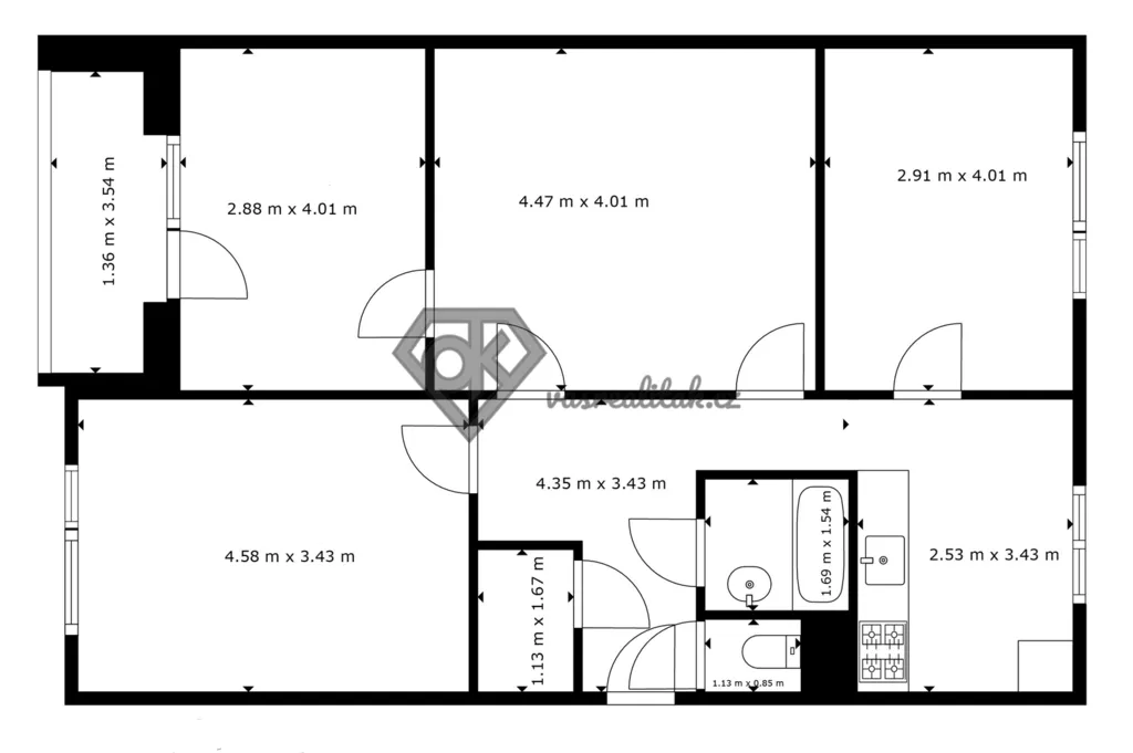
Nemovitost je v původním stavu, takže pokud jste chtěli mít bydlení přesně podle svého - tady máte příležitost! Byt se nachází v 1. nadzemním podlaží panelového domu a jeho celková podlahová plocha činí 81,6 m².

Jaká je dispozice bytu?
- předsíň
- kuchyně
- prostorný obývací pokoj
- tři pokoje
- koupelna
- toaleta
- komora
Nechybí ani lodžie a sklep.

Pár technických informací?
- podlahová plocha 81,6 m²
- původní stav - ideální k rekonstrukci
- panelový dům
- 1. nadzemní podlaží
- dálkové vytápění a ohřev vody
- plastová okna

Pro koho je byt ideální?
- pro rodinu, která potřebuje dostatek prostoru
- pro ty, kteří si chtějí bydlení upravit přesně podle svých představ a potřeb
- pro investory hledající nemovitost s potenciálem zhodnocení
- pro každého, kdo ocení praktickou dispozici a pohodlí života v bytě

O jakou se jedná lokalitu?
Ústí nad Orlicí nabízí kompletní občanskou vybavenost, jakou můžeme od okresního města očekávat. Najdete zde školy, školky, obchody, zdravotnická zařízení i široké možnosti sportovního a kulturního vyžití.
Město je dobře dopravně dostupné a zároveň obklopené krásnou přírodou.

Přijďte se podívat a objevte potenciál tohoto bytu na vlastní oči. Těším se na Vás na prohlídce.

Poznámka:
– uvedené výměry jsou pouze orientační
– v případě více zájemců bude nemovitost prodána nejlepší nabídce a majitel si vyhrazuje právo vybrat kupujícího na základě jim zvolených kritérií
– veškeré zveřejněné údaje obsažené v tomto inzerátu mají pouze informativní charakter a nejsou nabídkou ve smyslu § 1731 nebo § 1732 občanského zákoníku, ani se nejedná o veřejný příslib dle § 1733 občanského zákoníku

Parametry bytu

Cena
4 160 000 Kč /za nemovitost Spočítat hypotéku
Aktualizováno
30. 4. 2026
Adresa
Jilemnického, Ústí nad Orlicí
ID
0460
Stavba
Panelová
Stav objektu
Dobrý
Patro
1. z 8
Vybaveno
Částečně
Lokalita objektu
Sídliště
Vlastnictví
Družstevní
Užitná plocha
81 m2
Zastavěná plocha
1337 m2
Třída energetické náročnosti
G - Mimořádně nehospodárná
Elektřina
230V
Odpad
Veřejná kanalizace
Komunikace
Asfaltová
Doprava
Vlak, Silnice, MHD, Autobus
Voda
Vodovod
Výtah
Převod do OV

Kontaktovat makléře

Máte zájem o tento byt?

Tímto, v souladu s nařízením Evropského parlamentu a Rady (EU) 2016/679, v platném znění, prohlašuji, že mi je alespoň 16 let a uděluji tak svůj souhlas se zpracováním zadaných údajů (jméno, telefon, e-mail, ip adresa) společnosti B3 Technology, s.r.o., IČ: 07330600, se sídlem Novostavby 126/23, 435 11 Lom (správce dat), za účelem předání dotazu z tohoto formuláře Vámi vybranému inzerentovi a zpětného kontaktování mé osoby. Osobní údaje bude správce zpracovávat manuálně i automaticky přímo prostřednictvím svých zaměstnanců. Informace předané tímto formulářem budou uloženy v databázi správce maximálně po dobu 10 let. Odvolání souhlasu s uložením a zpracováním poskytnutých dat lze e-mailem na info@videobydleni.cz. V případě podezření na neoprávněné použití Vámi poskytnutých údajů máte právo předat podnět k šetření Úřadu pro ochranu osobních údajů. Více informací
Chystáte se prodat nemovitost?
Pomůžeme Vám!

Inzerát si prohlédlo 1 lidí

Prodejce

Ondřej Kolář

Ondřej Kolář

Hlídací pes

Chcete dostávat emailem podobné nabídky prodeje bytů 4+1 v Ústí nad Orlicí?

Podobné nemovitosti


Nevyhovuje Vám typ bytu? Podívejte se na jiné kategorie bytů.


Vybrané články z našeho blogu